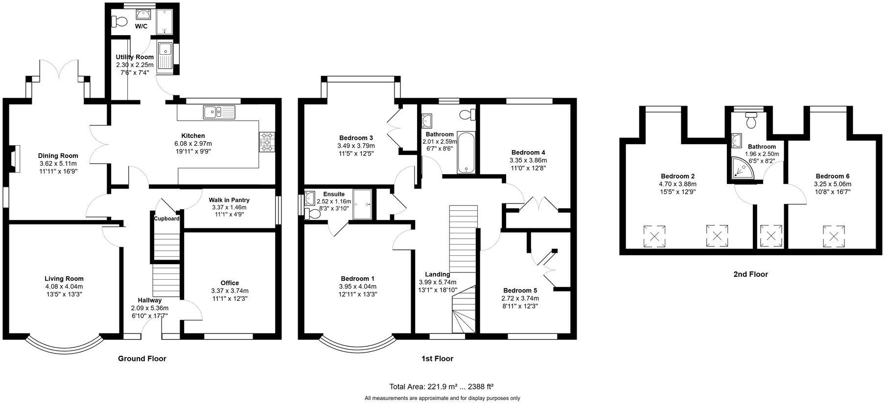
Six double bedrooms with built-in wardrobes
Nestled on a corner plot at the end of a quiet close, this spacious five-bedroom detached home blends 1920s character with modernised living spaces. Generous reception rooms, a large kitchen with dining space and a practical utility room create family-friendly circulation. The master bedroom benefits from an ensuite and all bedrooms include wardrobe space. With a driveway for three cars and a large garden, outdoor living and parking are genuine strengths.
The house provides practical convenience for commuters and families: Rayleigh Station is a 20-minute walk with services to London Liverpool Street, and the High Street, park and multiple well-regarded primary and secondary schools lie within walking distance. Broadband and mobile signals are strong, supporting home working and streaming.
Buyers should note a few material points. The property has an EPC rating of D and external walls are likely solid brick with no installed insulation, so further energy improvements (insulation, glazing checks, boiler servicing) may be needed to cut running costs. Council tax is described as expensive, and local crime is above average. The glazing install dates are unknown and the house’s age means some maintenance or upgrades could be required over time.
Overall, this substantial family house offers room for multigenerational living or flexible working, with scope for energy-efficiency improvements to reduce bills. It suits buyers seeking space, character and excellent local schools within walking distance, while accepting the responsibility and costs of upgrading older construction where desired.
4 bedroom detached house for sale in Heron Gardens, Rayleigh, Essex, SS6 — £500,000 • 4 bed • 2 bath • 1269 ft²
4 bedroom detached house for sale in Hillview Road, Rayleigh, SS6 — £735,000 • 4 bed • 3 bath
5 bedroom detached house for sale in Video Tour - Bedford Close, Rayleigh, SS6 — £750,000 • 5 bed • 4 bath • 2044 ft²
5 bedroom detached house for sale in Victoria Road, Rayleigh, SS6 — £750,000 • 5 bed • 3 bath • 1033 ft²
5 bedroom detached house for sale in High Road, Rayleigh, SS6 — £1,150,000 • 5 bed • 3 bath • 2856 ft²
4 bedroom detached house for sale in Temple Way, Rayleigh, SS6 — £600,000 • 4 bed • 3 bath • 1475 ft²






























































































































