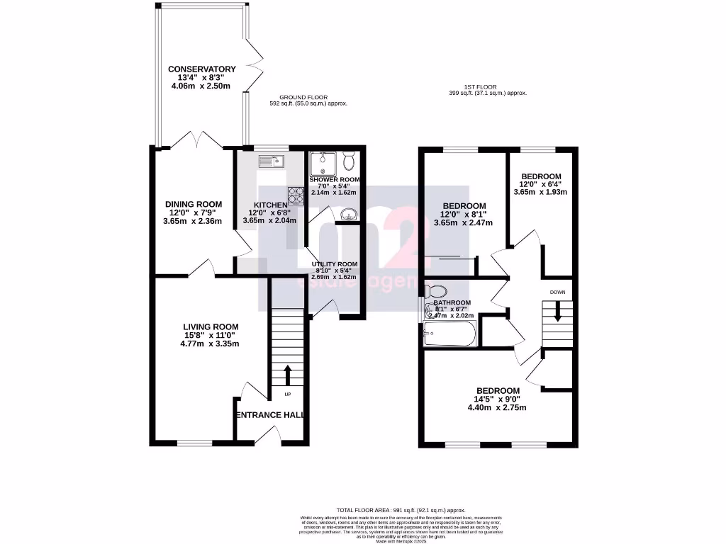
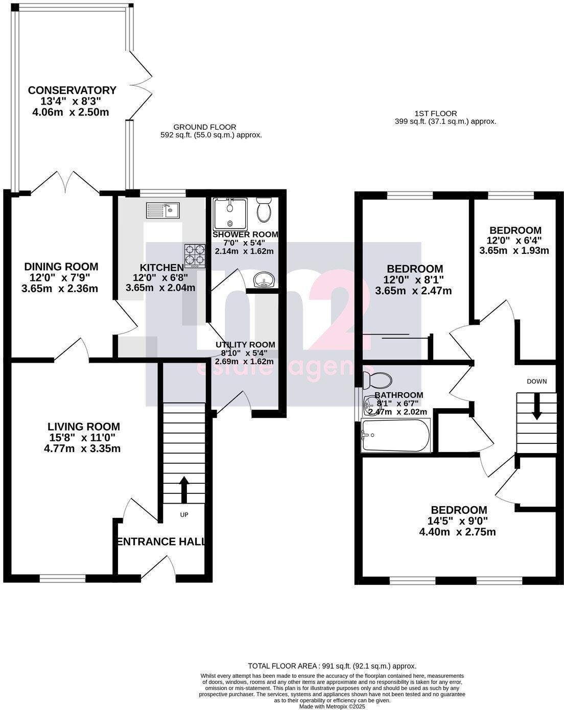
Private rear garden with conservatory and practical family layout.
Close to Monmouth town centre, easy walking distance
Set close to Monmouth town centre, this three-bedroom detached home suits a family seeking straightforward, low-maintenance accommodation with a private garden. The layout includes lounge, dining room, conservatory, kitchen, utility, ground-floor shower room and three first-floor bedrooms with a family bathroom, arranged over a compact 991 sq ft footprint.
Practical features include gas central heating, uPVC double glazing and an off‑street side driveway with space for two small cars. The rear garden is private and mature, offering a safe play or entertaining area. The conservatory provides extra living space and a direct connection to the garden.
The house was built in the late 1960s–1970s and has cavity walls with no known added insulation; upgrading insulation and some energy-efficiency elements would improve comfort and running costs. The local area has above-average crime statistics and higher deprivation indicators, which buyers should factor into their decision. Room sizes are average, so this property appeals to buyers wanting a modest, practical family home with scope to modernise rather than a large executive residence.
Early viewing is recommended for buyers who prioritise proximity to town amenities, a private garden and off-street parking, and who are prepared to carry out targeted improvements to insulation and energy performance.
3 bedroom detached house for sale in Monkswell Road, Monmouth, Monmouthshire, NP25 — £485,000 • 3 bed • 2 bath • 1542 ft²
3 bedroom detached house for sale in The Gardens, Monmouth, NP25 — £485,000 • 3 bed • 2 bath • 1184 ft²
3 bedroom house for sale in 44 Dixton Close, Monmouth, NP25 — £350,000 • 3 bed • 2 bath • 1228 ft²
3 bedroom semi-detached house for sale in Hereford Road, Monmouth, NP25 — £335,000 • 3 bed • 1 bath • 842 ft²
3 bedroom semi-detached house for sale in Wonastow Road, Monmouth, Monmouthshire, NP25 — £325,000 • 3 bed • 1 bath • 992 ft²
3 bedroom semi-detached house for sale in Wyefield Court, Monmouth, NP25 — £240,000 • 3 bed • 1 bath • 668 ft²


























































































