**Standout Features:**
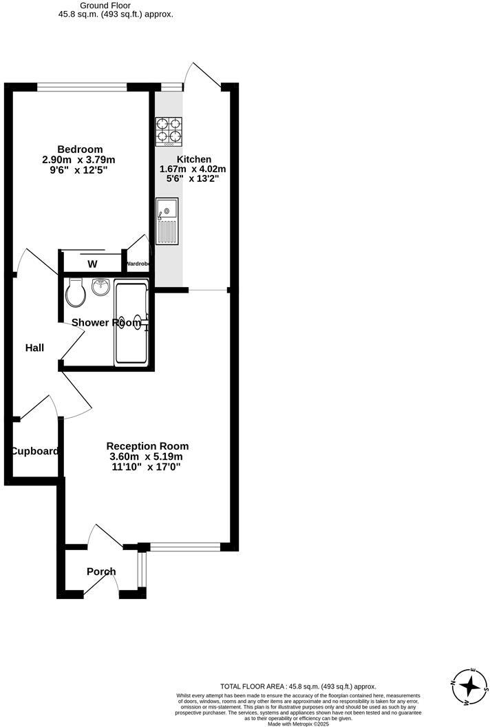
- Ground floor apartment with private garden
- One double bedroom and shower room combined with W.C.
- Lounge diner perfect for relaxation and easy entertaining
- Allocated off-street parking
- Prime location in Epsom Town Centre, 0.2 miles from the High Street and 0.4 miles from Epsom Station
**Concerns:**
- Property requires modernisation
- Above-average crime rating in the area
Discover the potential of this ground floor apartment nestled in the heart of Epsom Town centre. Perfectly positioned for first-time buyers, investors, or those looking to downsize, this one-bedroom flat invites you to bring your vision to life with modern renovations. The generous lounge diner flows seamlessly into the kitchen and out to a quaint private garden, ideal for morning coffees or afternoon relaxation. Enjoy the convenience of allocated parking and easy access to a plethora of local amenities, from shops to health facilities.
Despite needing modernization, this apartment offers an opportunity to create your ideal haven in a vibrant community, surrounded by reputable schools and a bustling lifestyle. Don't miss out—this gem is waiting for your personal touch and is ready to be transformed into your dream home or a worthwhile investment. Act quickly; properties in this desirable location tend not to last!
1 bedroom house for sale in East Street, Epsom, KT17 — £245,000 • 1 bed • 1 bath • 345 ft²
1 bedroom flat for sale in Court Lane, Oaks View Court Lane, KT19 — £400,000 • 1 bed • 1 bath • 560 ft²
1 bedroom flat for sale in Yeomanry Close, Epsom, KT17 — £255,000 • 1 bed • 1 bath • 423 ft²
1 bedroom maisonette for sale in Stevens Close, Epsom, KT17 — £285,000 • 1 bed • 1 bath • 449 ft²
1 bedroom flat for sale in South Street, Epsom, KT18 — £220,000 • 1 bed • 1 bath • 334 ft²
2 bedroom flat for sale in Upper High Street, Epsom, Surrey. KT17 — £375,000 • 2 bed • 1 bath • 549 ft²














































