Chain-free two-bedroom home with private garden and parking, ideal for downsizers.
- Chain-free extended detached house on a generous corner plot
- Private rear garden backing onto school playing fields
- Two double bedrooms and family bathroom upstairs
- Conservatory provides light but requires modernisation
- Ground-floor shower room plus useful utility room
- Driveway parking and single garage for storage
- Freehold, fast broadband and excellent mobile signal
- Close to good and outstanding local schools and amenities
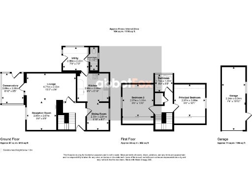
This extended two-bedroom detached house sits on a generous corner plot in sought-after Old Catton, offered with no onward chain. The house provides versatile living across two floors, including a lounge-diner, separate kitchen-diner, conservatory, useful utility room and a ground-floor shower room. Upstairs are two double bedrooms and a family bathroom — a straightforward layout suited to downsizers or small families.
Outside, the private rear garden backs onto school playing fields, creating a quiet, sheltered outlook and good privacy from mature boundaries. Driveway parking and an attached garage add practical parking and storage space. The plot size and layout give scope for modest landscaping or single-storey extensions, subject to consents.
Practical features include freehold tenure, fast broadband, excellent mobile signal and very low local crime. The property is close to primary and secondary schools, local shops and transport links into Norwich, making day-to-day life convenient. Viewing is advised to appreciate the plot and internal proportions.
The conservatory and some internal fittings show their age and would benefit from modernisation to suit contemporary tastes. Buyers seeking a completely turnkey finish should factor renovation costs; the home is best suited to those who want a well-located detached house with potential to update and personalise.
4 bedroom detached house for sale in The Warren, Old Catton, Norwich, NR6 — £585,000 • 4 bed • 2 bath • 2120 ft²
3 bedroom detached house for sale in Woodham Leas, Old Catton, Norwich, Norfolk, NR6 — £325,000 • 3 bed • 1 bath • 1069 ft²
4 bedroom link detached house for sale in Norman Drive, Norwich, NR6 — £350,000 • 4 bed • 2 bath
3 bedroom semi-detached house for sale in Woodham Leas, Old Catton, NR6 — £280,000 • 3 bed • 1 bath • 720 ft²
3 bedroom detached house for sale in The Paddocks, Old Catton, Norwich, Norfolk, NR6 — £270,000 • 3 bed • 2 bath • 1111 ft²
4 bedroom detached house for sale in Appleacres, Old Catton, Norwich, Norfolk, NR6 — £895,000 • 4 bed • 4 bath • 3000 ft²


























































