CW8 4GH - 4 bedroom detached house for sale in Myerscough Street, Win…

View on Property Piper

4 bedroom detached house for sale in Myerscough Street, Winnington, Northwich, CW8

Summary - 6, MYERSCOUGH STREET CW8 4GH

4 bed 2 bath Detached

Four bedrooms including ensuite to principal bedroom
Open-plan kitchen/diner with French doors to garden
Integrated garage, off-street parking and paved patio
Enclosed rear lawned garden, low maintenance
Freehold on completion
Service charge c. £120 per year (applies)
Council Tax Band E (above-average charge)
Presented in good order; scope to personalise later
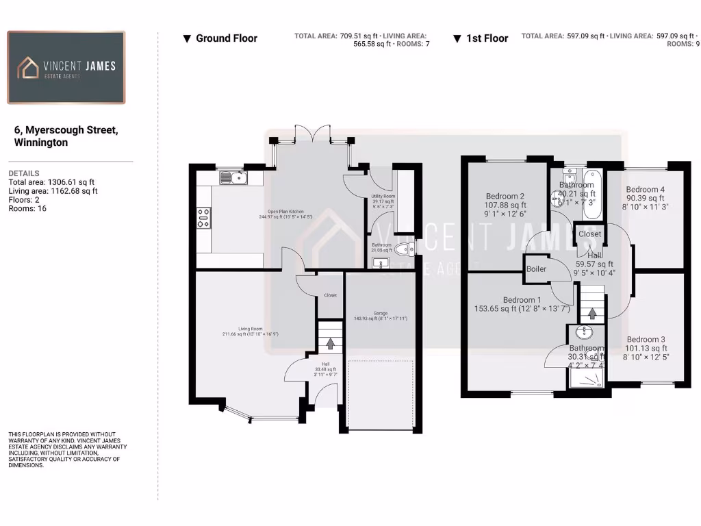
This well-presented, modern detached family home on Winnington Village offers practical, comfortable living across two storeys. The ground floor provides a welcoming hallway, bay-fronted lounge and a large open-plan kitchen/diner with French doors to the enclosed rear garden — ideal for everyday family life and entertaining. A useful utility room, ground-floor WC and integrated garage add everyday convenience.

Upstairs there are four bedrooms, including a principal bedroom with ensuite, plus a family bathroom. At about 1,306 sq ft the layout suits growing families who need separate living and sleeping zones. The property sits on a contemporary development with off-street parking and a lawned rear garden with patio — outside space that’s easy to maintain.

Practical positives include freehold tenure on completion, fast broadband availability and very low local crime. Note the property is in Council Tax Band E (above average) and a modest annual service charge of approximately £120 applies. Overall this is a straightforward, well-configured family home offering comfortable move-in condition with scope to personalise over time.

Property Details

Brochure Descriptions

Image Descriptions

Floorplan Description

Rooms

Textual Property Features

Detected Visual Features

EPC Details

Nearby Schools

Nearest Bars And Restaurants

,,,,}

Nearest General Shops

,,}

Nearest Grocery shops

,,}

Nearest Supermarkets

,,}

Nearest Religious buildings

,,}

Nearest Medical buildings

,,,}

Nearest Airports

,}

Nearest Leisure Facilities

,,,,}

Nearest Tourist attractions

,,}

Nearest Train stations

,,,,}

Nearest Bus stations and stops

,,,,}

Nearest Hotels

,,}

Tags

Local Market Stats

AirBnB Data

Meta

High Res Images

Compatible Images

Low res Images

Thumbnails

Raw Images

High Res Floorplan Images

Compatible Floorplan Images

Low res Floorplan Images

FloorplanImages Thumbnail

Raw Floorplan Images