**Standout Features:**
- Charming two-bedroom character cottage, previously a holiday retreat
- Located in a peaceful rural setting with excellent investment potential
- Modern farmhouse kitchen and spacious sitting/dining room
- Unique period features with high ceilings throughout
- Just a short drive to local amenities in Bethersden and Woodchurch
- Freehold tenure; no onward chain
**Potential Concerns:**
- Broadband speeds are very slow
- Shared responsibilities for water costs and driveway maintenance
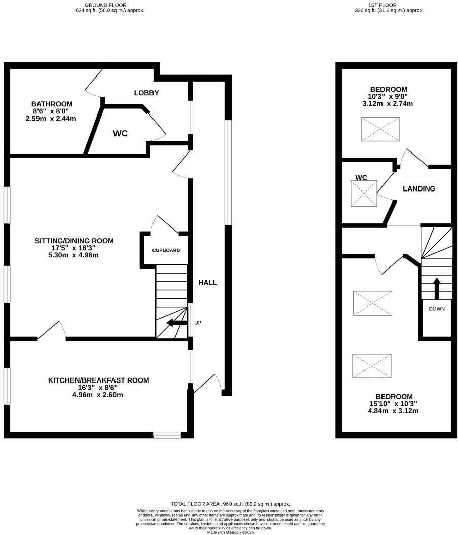
Nestled on the outskirts of the picturesque village of Bethersden, this delightful two-bedroom cottage is a fantastic opportunity for families, couples, or investors seeking a serene retreat. With its charming character as a former holiday cottage, you’ll find a bright modern farmhouse kitchen that flows into a spacious sitting/dining area—perfect for gatherings. The ground floor also includes a family bathroom with both a shower and a bath, while the first floor features two comfortable bedrooms and an additional WC.
The property's rural location offers a tranquil lifestyle, while still being a stone's throw away from local shops, schools, and community amenities, making it family-friendly. Enjoy connectivity to both historic Tenterden and the bustling town of Ashford, providing easy access to high-speed train services to London and beyond. This property boasts solid investment potential or a cozy family home—don’t miss your chance to secure this character-filled gem!
3 bedroom cottage for sale in Ashford Road, Bethersden, Ashford TN26 — £457,000 • 3 bed • 3 bath • 1104 ft²
2 bedroom cottage for sale in The Street, TN26 — £320,000 • 2 bed • 1 bath • 796 ft²
2 bedroom semi-detached house for sale in Church Hill, Bethersden, TN26 — £290,000 • 2 bed • 1 bath • 571 ft²
2 bedroom terraced house for sale in Hobday Cottage, The Lees, Ashford, Boughton Lees, TN25 — £290,000 • 2 bed • 1 bath • 581 ft²
3 bedroom detached bungalow for sale in Sandyhurst Lane, Ashford TN25 — £425,000 • 3 bed • 1 bath • 699 ft²
3 bedroom semi-detached house for sale in Ashford Road, Bethersden, Ashford, Kent, TN26 — £375,000 • 3 bed • 2 bath • 1673 ft²














































