Ideal for families near parks stations and top schools.
Immaculately presented three-bedroom semi-detached home
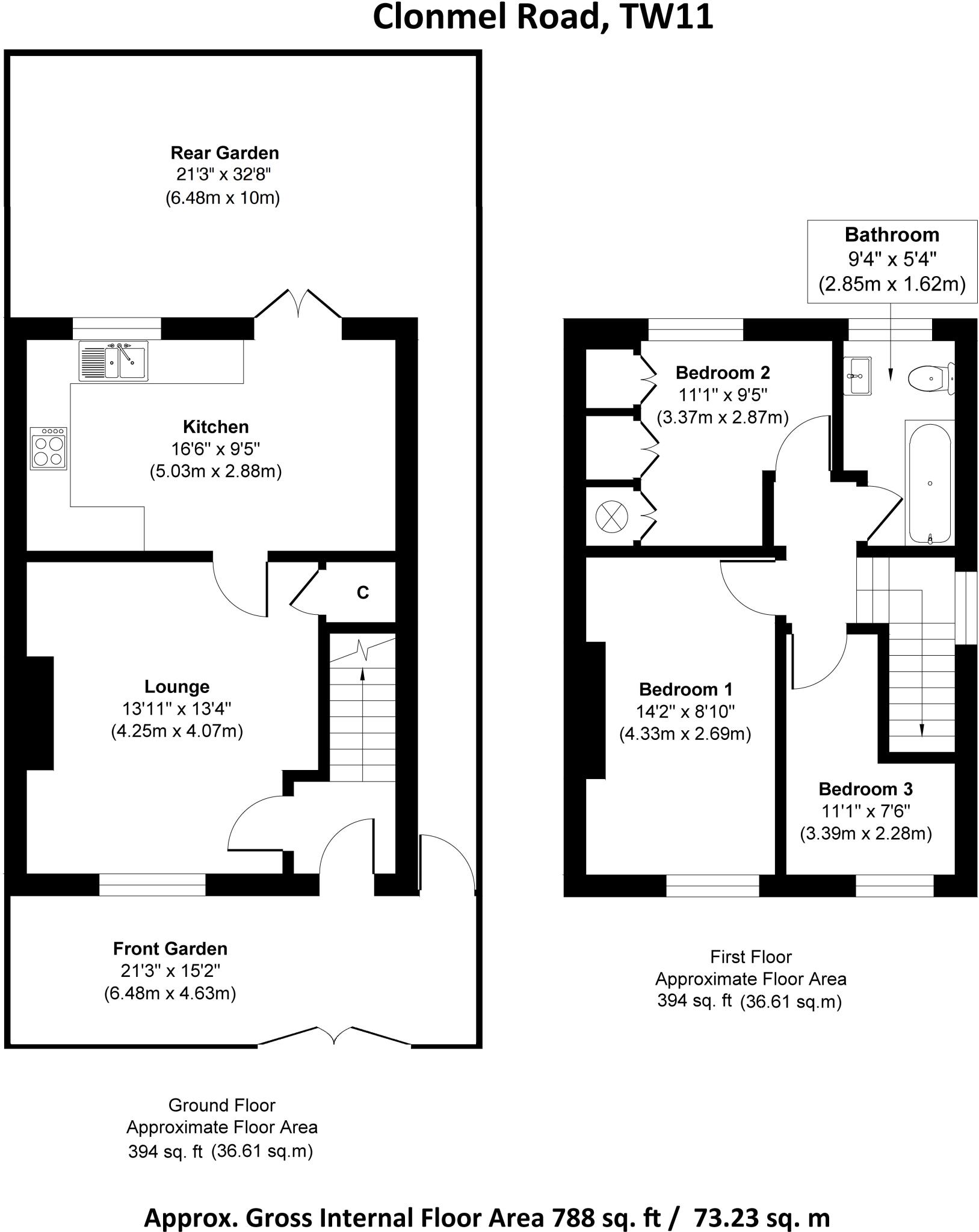
A neatly refurbished three-bedroom semi-detached home offering 788 sq ft of comfortable living across two floors. The property is presented in good order with modern fixtures, double glazing and a light-filled kitchen/dining room that opens onto a southerly-aspect garden with gated side access. Its compact footprint suits buyers seeking a well-located family starter or those wanting a finished home to occupy straight away.
Location is a clear strength: the house is within 0.4 miles of several popular schools, 0.1 mile from Fulwell station and under a mile from Teddington town centre and Bushy Park. On-street parking and a gated front garden complement the mature rear garden, which benefits from sunny exposure and room for children or container planting.
There is genuine scope to add value: subject to planning and building regulations the layout could accommodate a loft conversion and ground-floor extension, increasing living space and resale potential. Buyers should allow time and budget for any permissions required.
Notable practical points: the property is modest in overall size with a single family bathroom and a small plot, so storage and external space are limited compared with larger family houses. Council tax is above average. No flood risk is recorded and local broadband and mobile signals are strong.
3 bedroom semi-detached house for sale in Princes Road, Teddington, Middlesex, TW11 — £945,000 • 3 bed • 1 bath • 1082 ft²
3 bedroom semi-detached house for sale in Rivermeads Avenue, Twickenham, TW2 — £625,000 • 3 bed • 1 bath • 1145 ft²
4 bedroom semi-detached house for sale in Rivermeads Avenue, Twickenham, TW2 — £800,000 • 4 bed • 2 bath • 1224 ft²
4 bedroom semi-detached house for sale in Fulwell Road, Teddington, TW11 — £995,000 • 4 bed • 1 bath • 1800 ft²
4 bedroom semi-detached house for sale in Court Close, Twickenham, TW2 — £899,950 • 4 bed • 3 bath • 1648 ft²
4 bedroom semi-detached house for sale in Boucher Close, Teddington, TW11 — £899,950 • 4 bed • 2 bath • 1232 ft²






















































