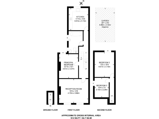
**Standout Features:**
- Chain-free Victorian semi-detached home
- Spacious reception with original wood flooring and shutters
- Three bedrooms (two doubles, one smaller)
- Potential for loft conversion and balcony addition (STPP)
- Westerly-facing garden ideal for outdoor enjoyment
- Share of freehold with easy access to local amenities
**Summary:**
Discover this enchanting chain-free Victorian semi-detached home, perfectly positioned in a family-friendly neighborhood. A spacious reception area welcomes you with original wood flooring and high ceilings, creating an airy atmosphere ideal for relaxation or entertaining. With three bedrooms—two generous doubles and a cozy third—there's ample room for family living. The kitchen offers exciting potential for expansion, with plans available to add a balcony, plus ample loft space to create additional rooms (subject to planning permission).
Step outside to a delightful westerly-facing garden, lush with mature shrubs, perfect for sun-bathing or summer barbecues. Enjoy the vibrant atmosphere of nearby Lordship Lane, filled with shops, bars, and restaurants, while excellent transport links via East Dulwich provide easy access to Central London. The property also falls within catchment areas for quality schools, enhancing its appeal for families.
While the property exudes charm and potential, it's vital to note that some maintenance may be required. Early viewings are highly advised, as opportunities like this rarely stay on the market for long—secure your spot in this inviting home!
5 bedroom semi-detached house for sale in Friern Road, East Dulwich, London, SE22 — £1,500,000 • 5 bed • 2 bath • 1974 ft²
4 bedroom semi-detached house for sale in Heber Road, East Dulwich, London, SE22 — £1,000,000 • 4 bed • 1 bath • 1138 ft²
5 bedroom semi-detached house for sale in Woodwarde Road, East Dulwich, London, SE22 — £1,850,000 • 5 bed • 2 bath • 1884 ft²
2 bedroom terraced house for sale in Jennings Road, London, SE22 — £900,000 • 2 bed • 1 bath • 745 ft²
3 bedroom apartment for sale in Belvoir Road, East Dulwich, London, SE22 — £650,000 • 3 bed • 1 bath • 931 ft²
3 bedroom terraced house for sale in Underhill Road, London, SE22 — £1,075,000 • 3 bed • 1 bath • 1287 ft²














































