Large four-storey Victorian family home near Penarth town centre and marina.
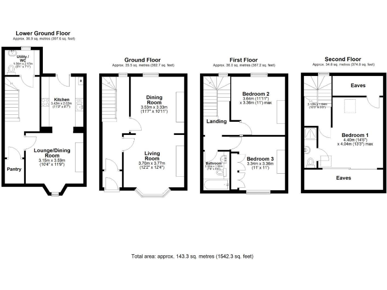
Spacious four-storey Victorian terrace, ~1,542 sq ft
Primary bedroom occupies entire second floor with ensuite
Lower ground floor adds lounge/diner, kitchen, cloakroom/utility
Westerly rear garden, shed, and rear lane access
Period features: bay window, cornices, fireplaces preserved
EPC C and mains gas boiler with radiators
Small plot, no off-street parking noted
Area: very deprived with above-average crime rates
Set over four levels, this Victorian mid-terrace offers spacious family living in the heart of Penarth, a short walk from the town centre, Cogan station and the marina. The large primary bedroom occupies the whole second floor and includes an ensuite, while two generous double bedrooms and a family bathroom sit on the first floor — offering flexible sleeping arrangements for children or guests.
The lower ground floor adds valuable living space: a cosy snug/dining room, practical kitchen with integrated appliances, cloakroom/utility and pantry. Original period features — bay window, high ceilings, cornices and fireplaces — give the house character while recent double glazing and an EPC C point to reasonable energy performance.
Externally there’s a westerly-facing rear garden with patio, artificial lawn, mature shrub borders, shed and rear lane access. The freehold tenure, mains gas central heating and a large overall footprint (about 1,542 sq ft) make this a substantial family home close to transport links and everyday amenities.
Buyers should note material considerations: the property sits in an area recorded as very deprived with above-average crime, the plot is small with no off-street parking mentioned, and some original wall construction is assumed uninsulated — further insulation or modernisation may be required. A single-glazed wooden window is present in the lower ground front room, and some rooms retain older finishes that may need updating to personal taste.
4 bedroom town house for sale in Windsor Road, Penarth, CF64 — £399,950 • 4 bed • 2 bath • 1582 ft²
2 bedroom terraced house for sale in 37 Lavernock Road, Penarth, CF63 3NX, CF64 — £325,000 • 2 bed • 1 bath • 987 ft²
6 bedroom terraced house for sale in 38 Victoria Road, Penarth, CF64 3HX, CF64 — £1,250,000 • 6 bed • 3 bath • 3265 ft²
4 bedroom terraced house for sale in Pembroke Terrace, Penarth, CF64 — £550,000 • 4 bed • 2 bath • 1744 ft²
3 bedroom end of terrace house for sale in 6 Sully Terrace, Penarth, CF64 3DS, CF64 — £599,950 • 3 bed • 1 bath • 1144 ft²
3 bedroom terraced house for sale in Pill Street, Penarth, CF64 — £299,950 • 3 bed • 1 bath






















































































