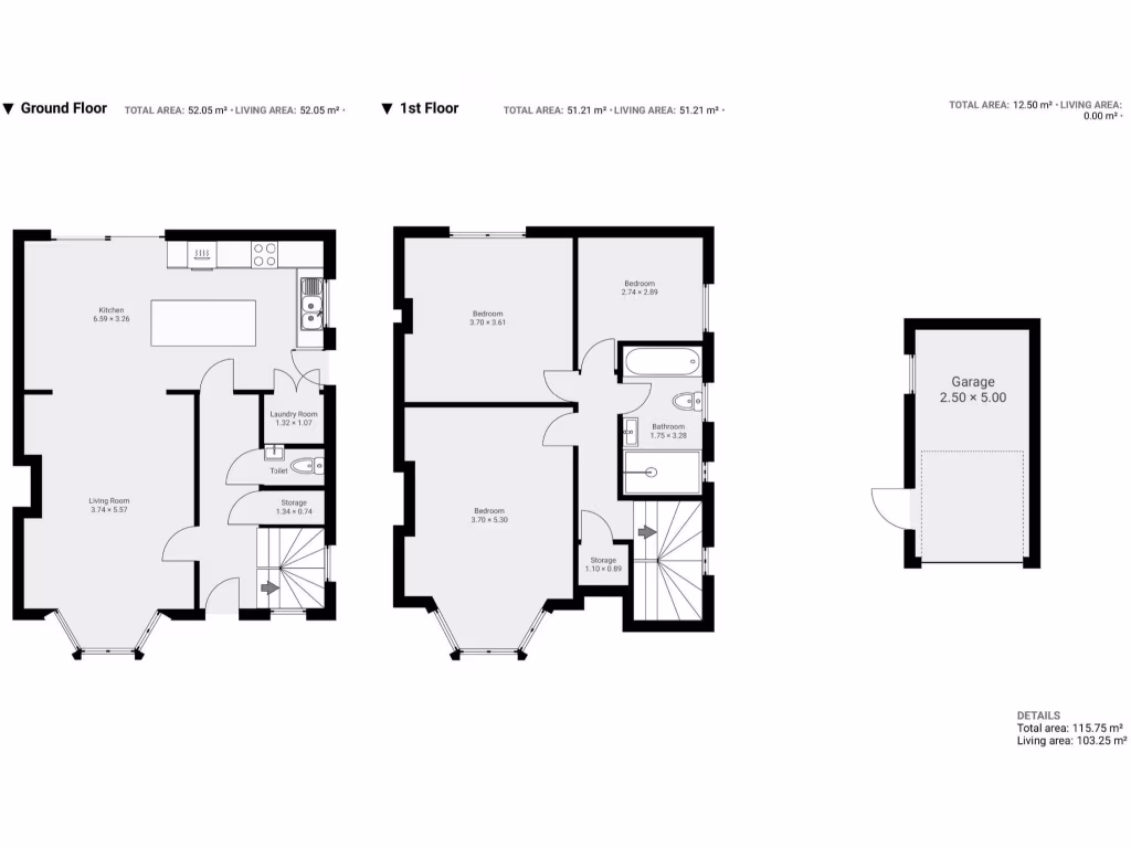
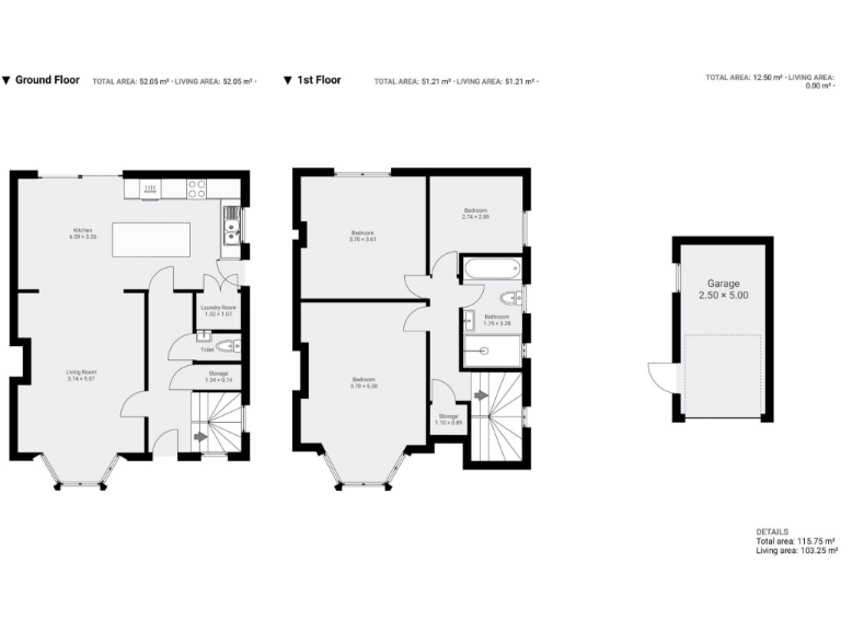
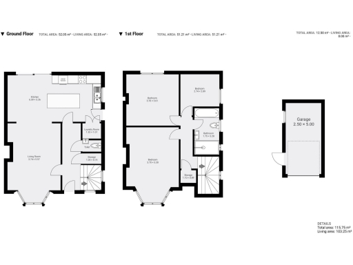
**Standout Features:**
- Newly renovated three-bedroom semi-detached home
- Chain-free with modern finishes and extensive upgrades
- Spacious open-plan kitchen and dining area filled with natural light
- Generous corner plot with front, side, and rear gardens
- Large driveway with parking for four cars and a separate garage
- Excellent transport links and access to local amenities
- Close proximity to well-regarded schools
**Concise Property Summary:**
Discover this stunning three-bedroom semi-detached home, beautifully refurbished and ready for its new owners. Situated on a generous corner plot in a comfortable neighborhood, this property boasts a modern open-plan kitchen and dining area that serves as the heart of the home. With a separate utility space, a stylishly designed family bathroom, and three well-appointed bedrooms—including two spacious doubles—this residence perfectly caters to family living.
Enjoy the expansive front, side, and rear gardens, complete with a large driveway that accommodates up to four vehicles and leads to a separate garage. The location provides excellent access to local amenities, parks, and well-rated schools, making it ideal for families or first-time buyers. While the area has a higher-than-average crime rate and is marked as deprived, the home's condition and renovated features present a wonderful opportunity for comfort and style. Don't miss out on this exceptional property; homes like this in desirable locations don't stay on the market for long. Book your viewing today!
3 bedroom semi-detached house for sale in Blencarn Crescent, Leeds, LS14 — £260,000 • 3 bed • 3 bath • 947 ft²
3 bedroom semi-detached house for sale in Roxholme Avenue, Leeds, LS7 — £290,000 • 3 bed • 1 bath • 657 ft²
3 bedroom semi-detached house for sale in Green Lane, Leeds, LS15 — £270,000 • 3 bed • 1 bath • 1174 ft²
3 bedroom detached house for sale in Hazel Avenue, Leeds, West Yorkshire, LS14 — £299,999 • 3 bed • 2 bath • 940 ft²
4 bedroom detached house for sale in Asket Hill, Roundhay, Leeds, LS8 — £425,000 • 4 bed • 1 bath • 1063 ft²
3 bedroom semi-detached house for sale in Temple Close, Temple Newsam, Leeds, LS15 — £263,995 • 3 bed • 1 bath • 865 ft²


















































































































