Chain-free starter home with garage and near-town convenience.
Chain free and freehold, ready for immediate purchase
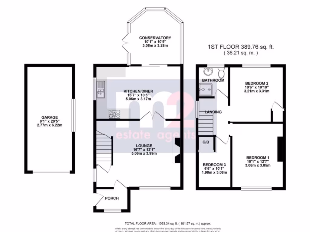
Extended layout with kitchen/diner and conservatory
Driveway plus single garage, small rear garden
Double glazing fitted after 2002 and mains gas heating
Three bedrooms, one shower room — single bathroom only
Requires updating throughout; budget for kitchen/bathroom works
Located close to Caerphilly town centre and local amenities
Area classified as very deprived; crime rate above average
This extended three-bedroom semi-detached house on Charles Street offers a practical starter home for buyers willing to invest modest updating. The layout includes a full-width kitchen/diner opening to a conservatory, separate living room, three first-floor bedrooms and a shower room — all arranged over an average-sized 1,093 sq ft footprint.
Key conveniences include a driveway and garage, double glazing (fitted after 2002), mains gas central heating and fast mobile/broadband connectivity — useful for home working and modern living. The property is chain-free and freehold, positioned within easy walking distance of Caerphilly town centre and local amenities.
The house requires renovation throughout: cosmetic and likely kitchen/bathroom modernisation are needed, and buyers should allow budget for updates to fixtures, finishes and possible mechanical systems. The rear garden and single garage suit basic outdoor needs but the plot is small, so extensions or large landscaping projects will be limited.
Location strengths are offset by local context: the wider area is classed as very deprived and recorded crime levels are above average. For buyers prioritising value and convenience — particularly first-time purchasers or DIY-savvy buyers — this house presents clear scope to add value through refurbishment.
3 bedroom semi-detached house for sale in Charles Street, CAERPHILLY, CF83 — £260,000 • 3 bed • 2 bath • 829 ft²
3 bedroom terraced house for sale in Ludlow Street, Caerphilly, CF83 1GH, CF83 — £200,000 • 3 bed • 1 bath • 897 ft²
3 bedroom terraced house for sale in Lawrence Street, CAERPHILLY, CF83 — £150,000 • 3 bed • 1 bath • 666 ft²
3 bedroom semi-detached house for sale in Glan Ffrwd, Caerphilly, CF83 — £180,000 • 3 bed • 1 bath • 872 ft²
2 bedroom terraced house for sale in Bro Y Fan,Caerphilly,CF83 3QG, CF83 — £155,000 • 2 bed • 1 bath • 581 ft²
3 bedroom terraced house for sale in Broomfield Street, Caerphilly, CF83 1FY, CF83 — £275,000 • 3 bed • 1 bath • 828 ft²






































