Move-in ready two-bedroom with garden and excellent transport links.
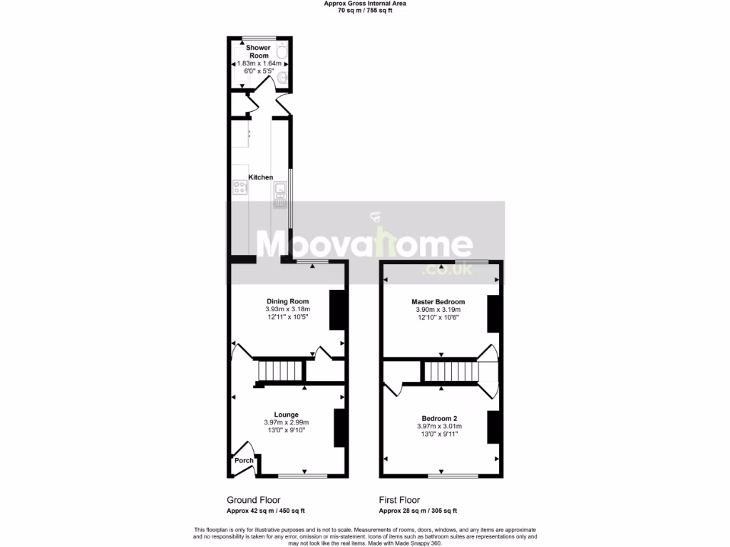
Two double bedrooms and two reception rooms
Newly renovated kitchen and bathroom throughout
Five-year-old boiler; mains gas central heating
Low-maintenance garden; small plot
On-street parking only; no off-street parking
Tenure not specified — buyer to verify
Walls are cavity construction with assumed no insulation
Area records very high crime; consider security improvements
This recently modernised two-bedroom mid-terrace sits a short walk from the town centre and train station, offering straightforward, low-maintenance living for a first-time buyer or investor. The ground floor hosts two reception rooms, a new kitchen and a contemporary bathroom, while upstairs are two generous double bedrooms and a five-year-old boiler.
Outside is a tidy, low-maintenance garden and on-street parking. The property retains period character in the living room with high ceilings and a feature fireplace, yet benefits from double glazing installed after 2002 and modern fixtures throughout. At about 755 sq ft, the layout feels comfortably proportioned for the size.
Notable practical points: tenure is not specified and walls are assumed to be uninsulated cavity construction, which may affect running costs until improved. The area records very high crime levels, so buyer consideration for security measures is advised. Council tax is described as low and flood risk is nil.
Overall this home is move-in ready with modest rooms and dependable heating, making it a practical purchase for someone seeking central access, rental potential, or a manageable first home. Buyers seeking large gardens, off-street parking, or rural tranquillity should look elsewhere.
2 bedroom terraced house for sale in Crombey Street, Swindon, SN1 — £220,000 • 2 bed • 1 bath • 899 ft²
2 bedroom terraced house for sale in Crombey Street, Swindon, Wiltshire, SN1 — £220,000 • 2 bed • 2 bath • 666 ft²
2 bedroom terraced house for sale in Butterworth Street, Swindon, SN1 — £210,000 • 2 bed • 1 bath • 710 ft²
2 bedroom terraced house for sale in Dryden Street, Town Centre, Swindon, SN1 — £180,000 • 2 bed • 1 bath • 724 ft²
2 bedroom terraced house for sale in Tennyson Steet, Swindon, SN1 — £215,000 • 2 bed • 1 bath • 692 ft²
2 bedroom terraced house for sale in Clifton Street, Swindon, Wiltshire, SN1 — £229,950 • 2 bed • 1 bath • 635 ft²






































