Spacious extended family home with large garden, garage and easy access to Oxford Parkway.
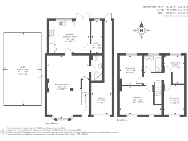
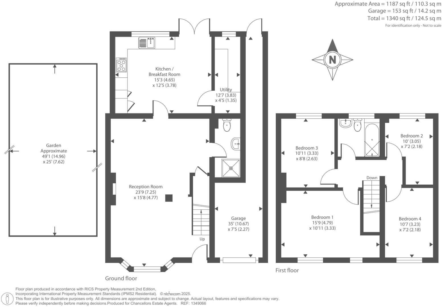
Extended four-bedroom semi-detached with 1340 sq ft living space
This extended four-bedroom semi-detached home in Kidlington combines mid-20th-century character with a contemporary kitchen/diner and thoughtful extensions. The ground floor flows from a spacious lounge into the extended kitchen/diner, creating a practical family living and entertaining space. A downstairs shower room and utility add everyday convenience while the first floor houses four bedrooms and a family bathroom.
Outside, the property sits on a large plot with a mature, well-stocked enclosed rear garden, garage and off-street parking on a pebble-dash frontage. Commuters benefit from being approximately 1.6 miles to Oxford Parkway, with fast broadband and excellent mobile signal for home working. Local schools (state and independent) and nearby amenities make this a practical choice for families.
Built between 1900–1929 with solid brick walls and double glazing installed after 2002, the house is well-presented but retains period construction features. Buyers should note the assumed lack of cavity wall insulation in the original solid brickwork — upgrading insulation could be a sensible improvement. The home is freehold with mains gas central heating and moderate council tax banding.
4 bedroom semi-detached house for sale in Croft Avenue, Kidlington, OX5 — £575,000 • 4 bed • 2 bath • 1687 ft²
4 bedroom semi-detached house for sale in Hazel Crescent, Kidlington, OX5 — £600,000 • 4 bed • 2 bath • 1555 ft²
4 bedroom semi-detached house for sale in Blenheim Road, Kidlington, OX5 — £550,000 • 4 bed • 2 bath • 1356 ft²
4 bedroom semi-detached house for sale in Kidlington, Oxfordshire, OX5 — £500,000 • 4 bed • 2 bath • 1445 ft²
3 bedroom semi-detached house for sale in Laburnum Crescent, Kidlington, OX5 — £400,000 • 3 bed • 1 bath • 1338 ft²
4 bedroom semi-detached house for sale in Oxford Road, Kidlington, OX5 — £625,000 • 4 bed • 3 bath • 1884 ft²


























































































