Chain-free three-bed with large living space, driveway and garage — ideal renovation project.
Chain free freehold three-bedroom semi-detached house
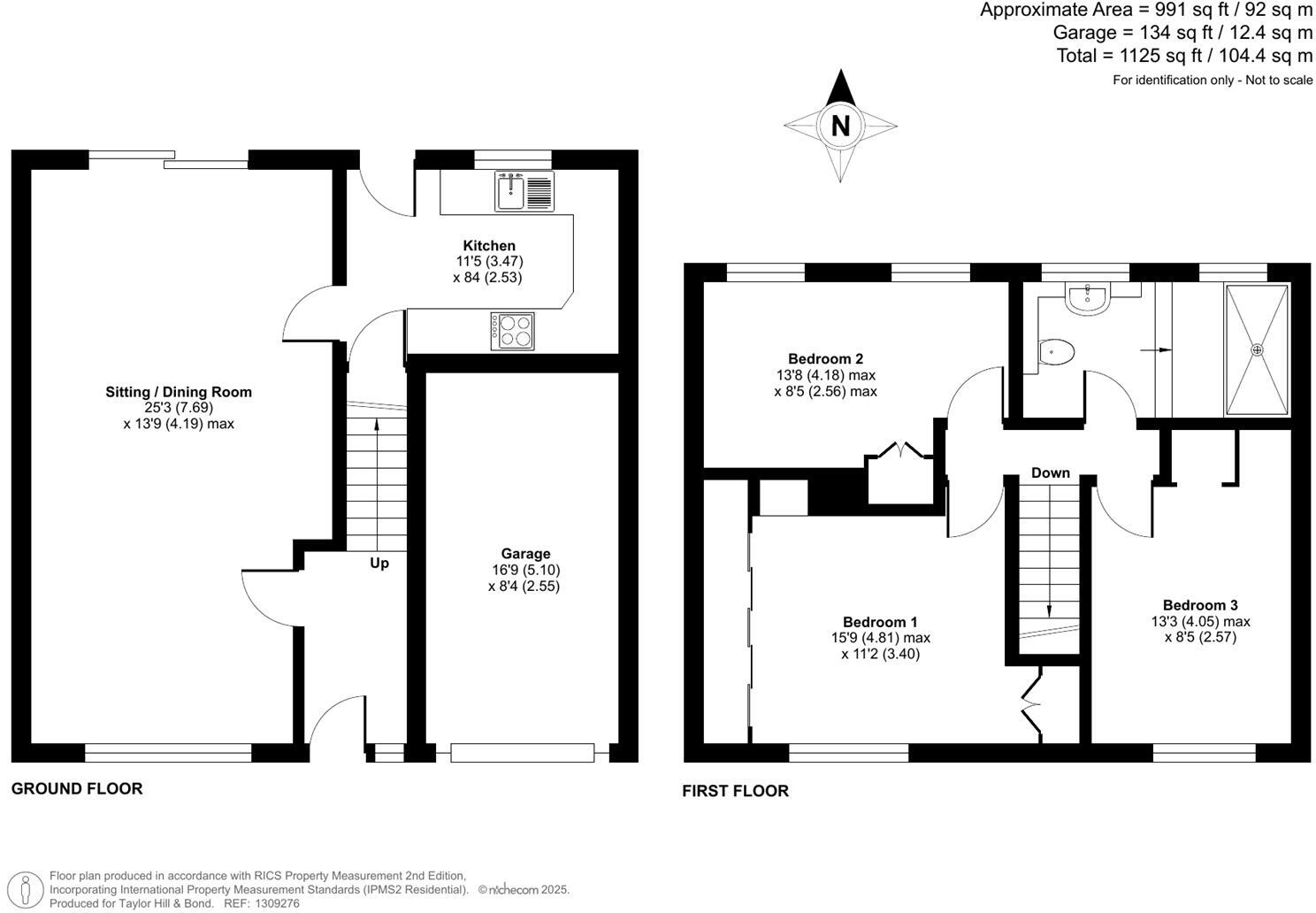
This three-bedroom semi-detached family home in The Greendale, Fareham, is offered chain free and ready for renovation. The property sits on a decent plot with extensive block-paved driveway parking and a single garage — practical for families with multiple cars or those seeking extra storage. Inside, a generous dual-aspect sitting/dining room stretches to about 25–26ft, providing a bright, flexible living space once modernised.
The house requires updating throughout: carpets, fixtures and finishes are dated and the property is marketed as in need of modernising. There is a functional Worcester boiler recently replaced, double glazing installed post-2002 and mains gas central heating — sensible services that reduce immediate major expense. The kitchen includes ample cupboards and integrated fridge, dishwasher and electric hob/oven; the first-floor shower room serves all three double bedrooms.
Location strengths include very low local crime, fast broadband and excellent mobile signal, plus nearby amenities, bus stops and Fareham town centre within 2.2 miles. Local schools are a mix: two nearby primaries rated Good, while some local schools require improvement. EPC D and council tax band C (affordable) should be noted by buyers planning energy upgrades or refurbishment.
This property will appeal to families or buyers seeking a renovation project with immediate practical benefits (driveway, garage, working boiler, double glazing). Expect to invest in cosmetic and possibly layout improvements to unlock full value. Chain free status and straightforward tenure (freehold) make for a simpler purchase process.
3 bedroom semi-detached house for sale in Glenbrook Walk, Fareham, Hampshire, PO14 — £275,000 • 3 bed • 1 bath • 1063 ft²
3 bedroom semi-detached house for sale in Severn Close, Fareham, PO16 — £325,000 • 3 bed • 1 bath • 748 ft²
3 bedroom semi-detached house for sale in Highlands Road, Fareham, PO15 — £310,000 • 3 bed • 1 bath • 1064 ft²
3 bedroom semi-detached house for sale in Holbrook Road, Fareham, PO16 — £340,000 • 3 bed • 1 bath • 948 ft²
3 bedroom detached house for sale in Oak Road, Fareham, PO15 — £365,000 • 3 bed • 2 bath • 1205 ft²
3 bedroom semi-detached house for sale in Henley Gardens, Fareham, PO15 — £265,000 • 3 bed • 1 bath • 784 ft²


















































