SO30 2HX - 3 bed contemporary three bedroom home in Oakhanger Close, S…

View on Property Piper

3 bedroom semi-detached house for sale in Oakhanger Close, Whiteley Meadows, Curbridge, SO30

Summary - 7 Oakhanger Close,CURBRIDGE,SO30 2HX SO30 2HX

3 bed 2 bath Semi-Detached

Move-in ready 3-bed with en-suite, garden and two parking spaces in Whiteley Meadows..
Built 2023 — contemporary, low-maintenance new build
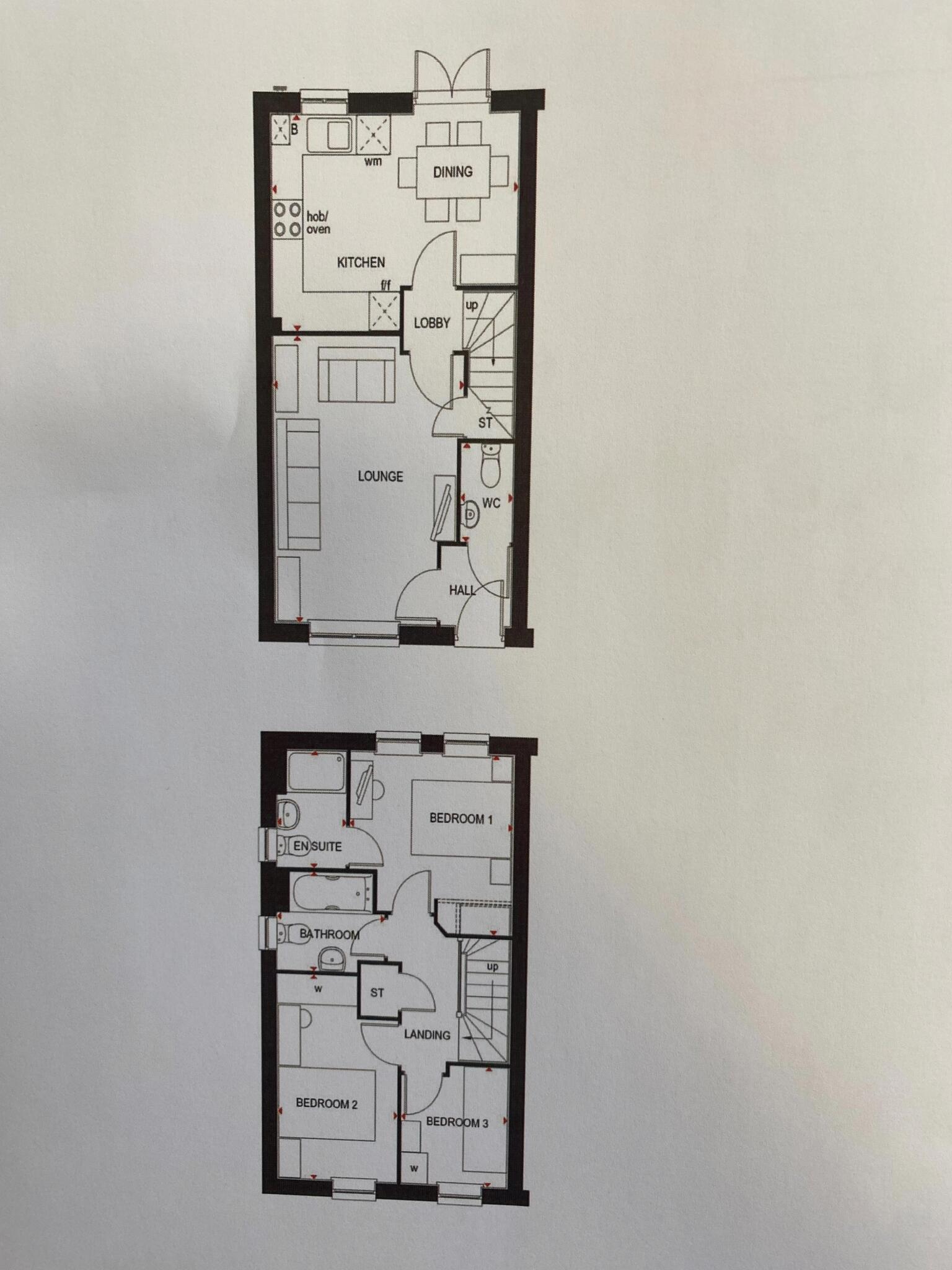
A modern three-bedroom semi-detached home built in 2023, well suited to families seeking move-in condition and low initial maintenance. The ground floor offers a generous lounge, kitchen/breakfast room with integrated appliances and a handy downstairs WC. Upstairs are two double bedrooms including an en-suite to the master, a third bedroom and a family bathroom.

Outside, the rear garden is enclosed by panel fencing and mainly laid to lawn with a paved patio for outdoor dining. The property includes two allocated off-street parking spaces plus nearby visitor bays, and benefits from UPVC double glazing, gas central heating and an Energy Rating of B.

Positioned within easy reach of Whiteley shopping centre, good local schools and direct links to the M27, the home offers practical daily convenience. Broadband speeds are listed as fast and mobile signal is excellent — useful for home working or streaming.

Notable negatives are factual: the area reports above-average crime levels and council tax sits at a moderate level (Band D). The loft has not been inspected and there is no onward chain, which may suit buyers seeking a quick move. Overall, this is a contemporary, low-maintenance family home with straightforward commuter and local amenities.

Property Details

Image Descriptions

Floorplan Description

Rooms

Textual Property Features

Target Audience

AI Tags

Detected Visual Features

Nearby Schools

Nearest Bars And Restaurants

,,,,}

Nearest General Shops

,,}

Nearest Grocery shops

,,}

Nearest Supermarkets

,,}

Nearest Religious buildings

,,}

Nearest Medical buildings

,,,}

Nearest Airports

}

Nearest Leisure Facilities

,,,,}

Nearest Tourist attractions

,,}

Nearest Train stations

,,,,}

Nearest Bus stations and stops

,,,,}

Nearest Hotels

,,}

Tags

Local Market Stats

Similar Properties

Meta

High Res Images

Compatible Images

Low res Images

Thumbnails

Raw Images

High Res Floorplan Images

Compatible Floorplan Images

Low res Floorplan Images

FloorplanImages Thumbnail

Raw Floorplan Images