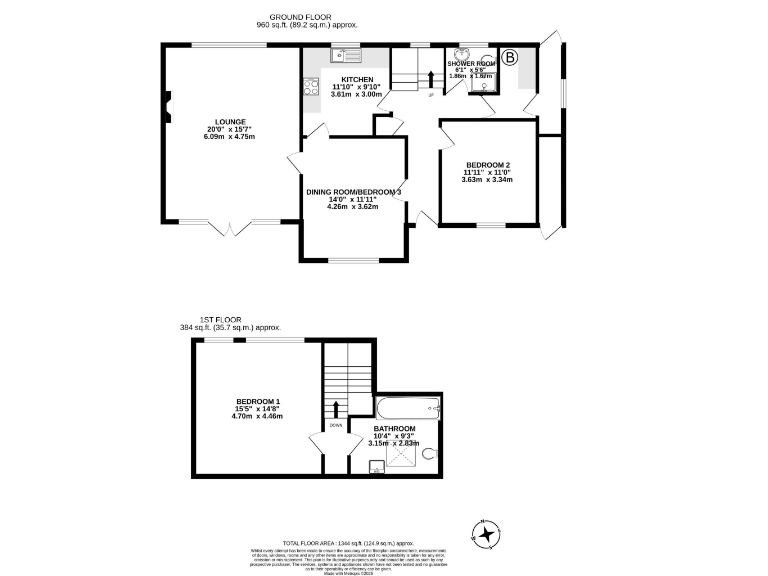
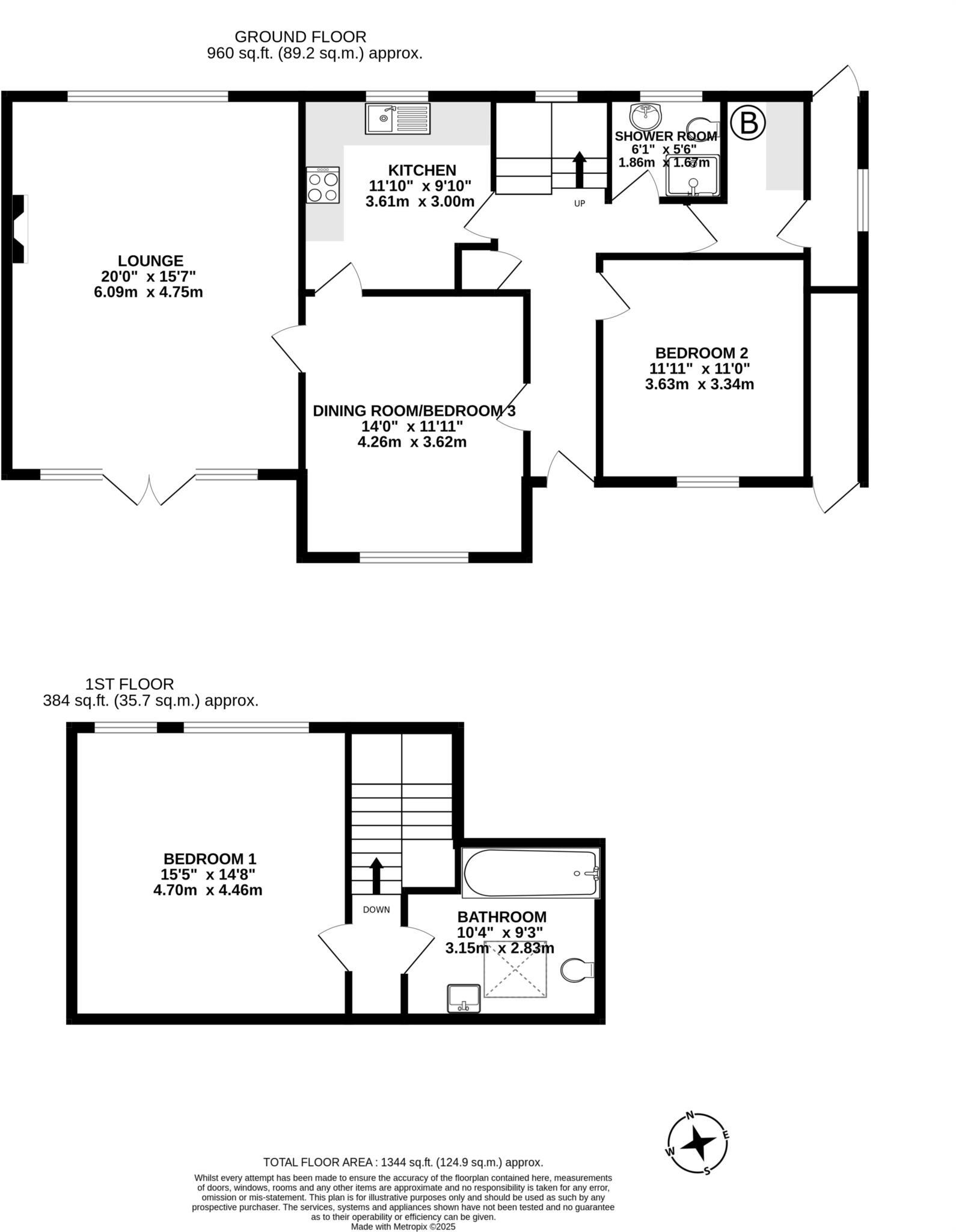
**Standout Features:**
- Spacious detached chalet bungalow, newly renovated
- 3 bedrooms, includes a versatile dining room/bedroom
- Modern kitchen and bathrooms
- Large lounge with patio doors and a wood burner
- Off-street parking for several vehicles
- South-facing garden with low-maintenance design
- Located in the picturesque village of Lympstone, near the Exe Estuary
- Excellent transport links to Exeter city center and surrounding areas
This beautifully renovated detached chalet bungalow offers a perfect blend of modern living and community charm in the highly desirable village of Lympstone. Enjoy the spacious interior featuring a large lounge, a versatile dining room that can serve as a third bedroom, and a contemporary kitchen equipped with high-quality appliances. With two further double bedrooms and two modern bathrooms, this property is well-suited for families or investment purposes.
The south-facing garden and patio area provide an ideal space for outdoor relaxation, with off-street parking available. Positioned just seven miles from Exeter, Lympstone boasts excellent transport links, scenic river trails, and proximity to a wealth of local amenities—including pubs, shops, a primary school, and sports clubs. With its strong community vibe, low crime rates, and affluent surroundings, this home is a rare find.
While the property has much to offer, potential buyers should be mindful of the average mobile signal and the council tax band. Act now—properties in Lympstone don’t last long, particularly one as attractive and functional as this. Envision your family or investment flourishing in this serene setting today!
3 bedroom semi-detached house for sale in Underhill, Lympstone, Exmouth, EX8 — £450,000 • 3 bed • 2 bath • 861 ft²
4 bedroom detached house for sale in Longmeadow Road, Lympstone, Exmouth, Devon, EX8 — £900,000 • 4 bed • 3 bath • 1885 ft²
4 bedroom semi-detached house for sale in Lympstone, Exmouth, EX8 — £625,000 • 4 bed • 2 bath • 1578 ft²
3 bedroom detached bungalow for sale in Coming Soon, Lympstone, EX8 — £450,000 • 3 bed • 2 bath • 969 ft²
3 bedroom link detached house for sale in Underhill Crescent, Lympstone, EX8 — £595,000 • 3 bed • 2 bath • 1301 ft²
3 bedroom end of terrace house for sale in Bridge Cottages, Lympstone, EX8 — £425,000 • 3 bed • 1 bath • 1313 ft²










































