**Key Features:**
- Unique converted former School House with character
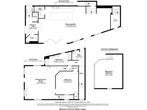
- Commercial space (1,152 sq ft) currently operating as a bar/restaurant
- Residential accommodation (1,672 sq ft) with original features
- Prime location in central Cowes, close to the High Street and ferry terminal
- Multi-terrace garden with Mediterranean styling
- Potential for various business uses (subject to planning permission)
- High demand area with significant seasonal visitor traffic
- Freehold tenure with a guide price of £725,000
This exceptional property presents a rare opportunity to own a historic yet modern venue in the heart of Cowes. The beautifully renovated Georgian structure blends commercial and residential spaces, making it perfect for entrepreneurs and families alike. Enjoy the vibrant atmosphere of this bustling harbor town while operating the thriving bar and restaurant, known for its stylish interiors and charming outdoor dining area. The living accommodation retains charming features from its original use as a school, offering a spacious open-plan layout with a modern kitchen and a cozy mezzanine bedroom.
With the potential for a variety of business uses, and options to extend trading days or renovate further, this property is not just a prime investment but a lifestyle opportunity as well. However, as a Grade II listed building, certain restrictions may apply regarding renovations. Don't miss this chance to secure a versatile property in a destination that attracts visitors year-round—schedule a viewing today!
2 bedroom property for sale in RARE OPPORTUNITY OF A RESIDENTIAL AND COMMERCIAL PROPERTY IN CENTRAL COWES - Cross Street, Cowes, PO31 — £725,000 • 2 bed • 1 bath • 1672 ft²
Commercial property for sale in High Street, Cowes, PO31 — £544,000 • 2 bed • 2 bath • 571 ft²
5 bedroom terraced house for sale in Cowes, Isle of Wight, PO31 — £950,000 • 5 bed • 4 bath • 3370 ft²
4 bedroom town house for sale in BEAUTIFUL GEORGIAN TOWNHOUSE - Medina Road, Cowes, PO31 — £625,000 • 4 bed • 4 bath • 1866 ft²
Commercial property for sale in Cowes, Isle of Wight, PO31 — £235,000 • 1 bed • 1 bath • 1593 ft²
3 bedroom house for sale in Cowes, Isle of Wight, PO31 — £350,000 • 3 bed • 2 bath • 1497 ft²


















































