**Standout Features:**
- 3 bedrooms with potential for versatility
- Stunning sea views over Mount's Bay, particularly from the first floor
- Spacious garden with previous planning permission for an additional dwelling
- Off-road parking and a long driveway
- Modern kitchen/family room, ideal for family living
- Gas central heating, EPC rating E
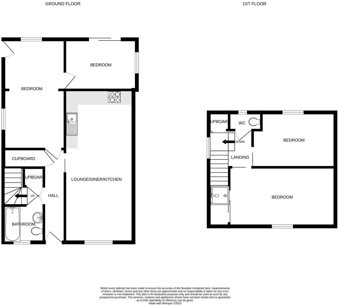
**Property Summary:**
Nestled in a tranquil residential neighborhood of Newlyn, this well-presented 3-bedroom detached dormer bungalow offers an ideal family home with remarkable sea views across Mount's Bay and towards St. Michael's Mount. The property boasts a versatile layout, including a spacious kitchen/family room perfect for gatherings and a cozy living room that opens to the garden, enhancing the home's airy atmosphere. Enjoy the benefits of gas central heating, along with ample off-road parking and a large garden that could easily accommodate future expansions or renovations.
While the property is generally well-maintained and inviting, potential buyers should be aware that some modernization may be needed in certain areas. This home stands out not only for its charm but also due to its sizable plot, previously granted planning permission for another dwelling, making this a unique opportunity for investors or families seeking a comfortable lifestyle with expansion potential. With local amenities and highly rated schools nearby, this property is ready for you to step in and make it your own. Don’t miss out on this rare find!
3 bedroom bungalow for sale in Adit Lane, Newlyn, TR18 5DX, TR18 — £375,000 • 3 bed • 2 bath • 1076 ft²
3 bedroom bungalow for sale in Gurnick Estate, Newlyn, TR18 5DU, TR18 — £650,000 • 3 bed • 1 bath • 1378 ft²
3 bedroom semi-detached house for sale in Forbes Road, Newlyn, TR18 5DQ, TR18 — £260,000 • 3 bed • 1 bath • 1000 ft²
3 bedroom bungalow for sale in Boskernick Close, Newlyn, Penzance, Cornwall, TR18 — £470,000 • 3 bed • 1 bath • 912 ft²
3 bedroom detached house for sale in Gurnick Road, Newlyn, TR18 — £315,000 • 3 bed • 2 bath • 982 ft²
3 bedroom bungalow for sale in Penkernick Close, Newlyn, TR18 5DA, TR18 — £480,000 • 3 bed • 2 bath • 904 ft²


















































