PE34 4RH - 4 bedroom detached house for sale in Poachers Way, Terringt…

View on Property Piper

4 bedroom detached house for sale in Poachers Way, Terrington St. Clement, PE34

Summary - Poachers Way, Terrington St. Clement PE34 4RH

4 bed 2 bath Detached

Spacious four-bedroom house with lantern-roof garden room and landscaped two-tier garden.
Built in 2018 — modern finish throughout
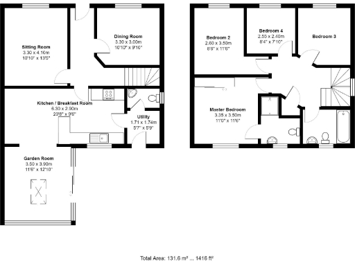
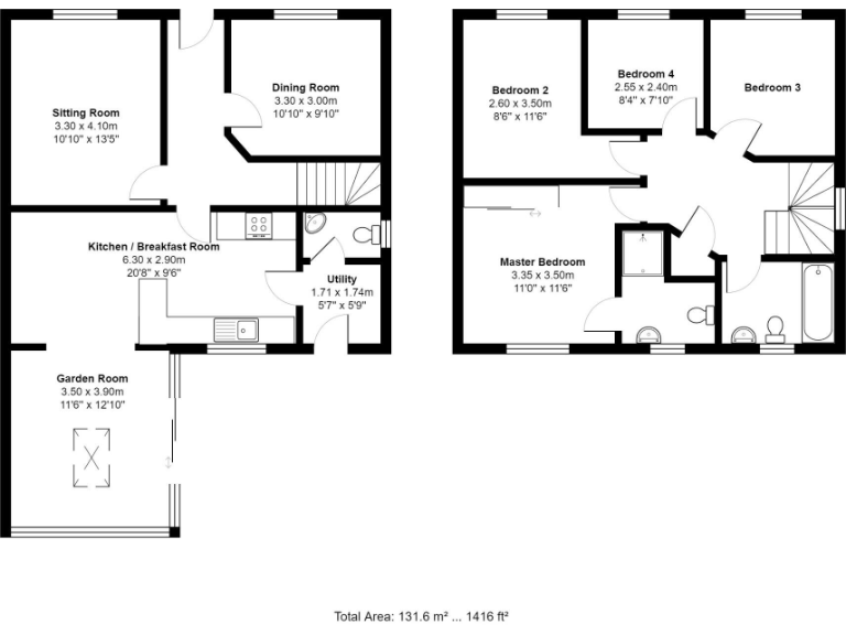
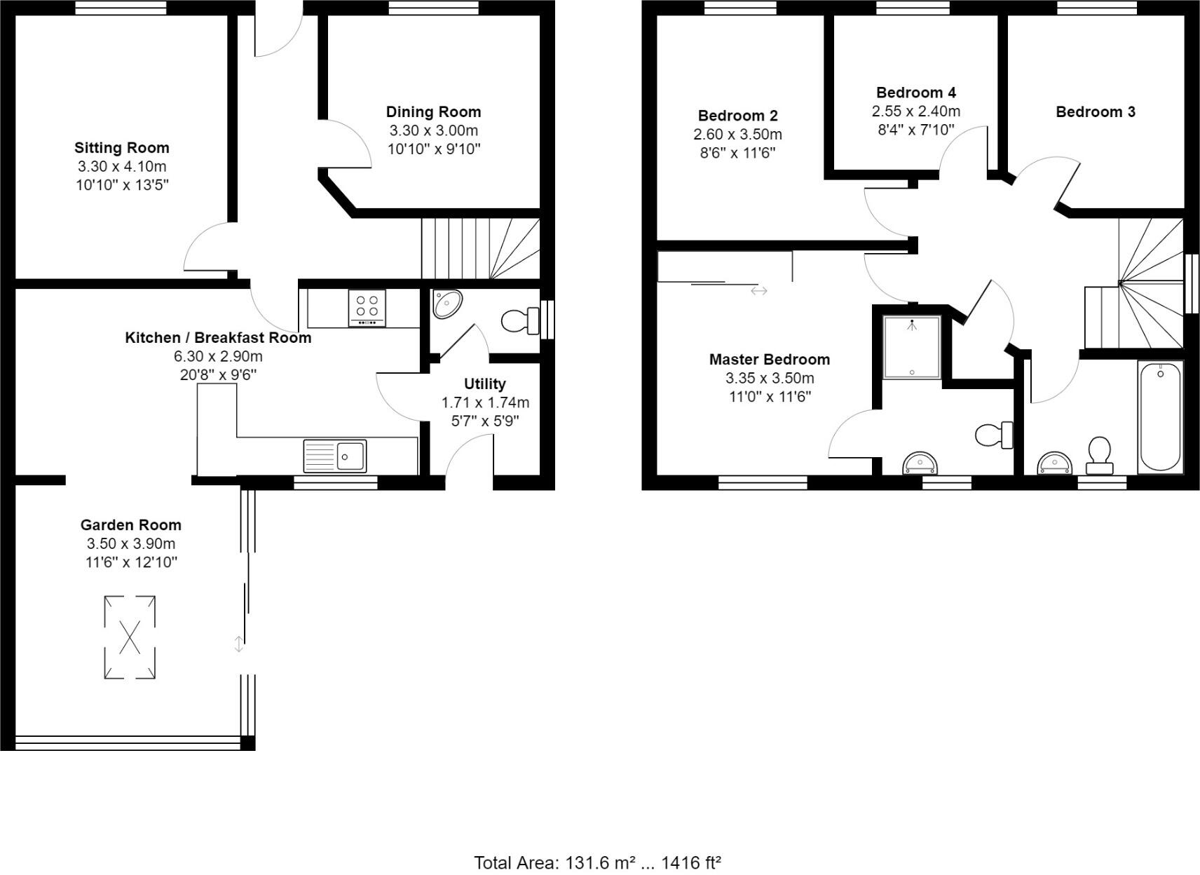
A modern, well-kept family home built in 2018, offering comfortable living across two floors and flexible ground-floor reception space. The highlight is the recently added garden room with a lantern roof, glazed elevations and air conditioning — an inviting, year-round living area that opens onto a landscaped, two-tier garden with a summer house and covered seating.

The kitchen is fitted to a high specification with granite work surfaces and integrated appliances, plus a separate utility and cloakroom for practical family use. Four bedrooms upstairs include a master with fitted wardrobes and an en-suite, and three further bedrooms served by the family bathroom — an appealing layout for families or home-workers.

Practical features include a driveway for three cars and an attached brick garage. Note the garage has been partitioned to create a studio and store room, which reduces full-length vehicle/storage space unless reinstated. The property is freehold with an EPC C and council tax band D.

Buyers should be aware of a medium flooding risk for the area and that the heating system uses LPG to fuel the boiler and radiators. Overall this is a modern, comfortable home in a semi-rural setting with good local schools and fast broadband — suited to families seeking a move-in ready house with useful extra living space and garden amenities.

Property Details

Image Descriptions

Floorplan Description

Rooms

Textual Property Features

Target Audience

AI Tags

Detected Visual Features

EPC Details

Nearby Schools

Nearest Bars And Restaurants

,,,,}

Nearest General Shops

,,}

Nearest Grocery shops

,,}

Nearest Supermarkets

,,}

Nearest Religious buildings

,,}

Nearest Medical buildings

,,,}

Nearest Leisure Facilities

,,,,}

Nearest Tourist attractions

,,}

Nearest Train stations

,,,,}

Nearest Bus stations and stops

,,,,}

Nearest Hotels

,,}

Tags

Local Market Stats

Similar Properties

Meta

High Res Images

Compatible Images

Low res Images

Thumbnails

Raw Images

High Res Floorplan Images

Compatible Floorplan Images

Low res Floorplan Images

FloorplanImages Thumbnail

Raw Floorplan Images