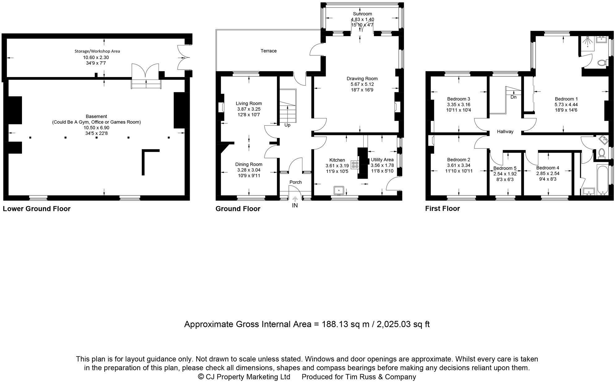
**Standout Features:**
- Five spacious bedrooms including an impressive principal suite
- Generous drawing room with abundant natural light and classic features
- Large basement offering potential for multiple uses (gym, games room, storage)
- Country kitchen with an Aga and separate utility room
- Expansive, mature rear garden for outdoor enjoyment
- Driveway parking for five cars plus garages
- Conveniently located a short walk from Princes Risborough Station and local shops
Nestled in an affluent community just a short stroll from Princes Risborough Station, this charming Arts and Crafts detached home combines traditional elegance with modern living. The 2013 sq ft property features five well-proportioned bedrooms, highlighted by a stunning principal bedroom with an en suite, perfect for family living. The downstairs boasts a variety of reception areas, including a cozy living room with a classic fireplace and an inviting drawing room ideal for entertaining guests.
The large basement presents exciting potential for customization, whether you envision a home gym or a vibrant games room, while the expansive rear garden offers mature landscaping and serene spaces to unwind. Although the property requires some maintenance, its generous size and desirable location make it a fantastic investment for families or discerning first-time buyers.
With local schools sporting “Good” Ofsted ratings and a low crime rate, this idyllic setting is perfect for families seeking both comfort and safety. Don't miss the chance to make this distinctive home your own—properties like this, offering such versatility and charm, don’t stay on the market for long!
5 bedroom semi-detached house for sale in Picts Lane, Princes Risborough, Buckinghamshire, HP27 — £820,000 • 5 bed • 2 bath • 2057 ft²
4 bedroom detached house for sale in Summerleys Road, Princes Risborough, Buckinghamshire, HP27 — £850,000 • 4 bed • 2 bath • 2066 ft²
3 bedroom end of terrace house for sale in Station Road, Princes Risborough, HP27 — £475,000 • 3 bed • 1 bath • 883 ft²
3 bedroom detached house for sale in Wycombe Road, Princes Risborough, Buckinghamshire, HP27 — £535,000 • 3 bed • 1 bath • 1099 ft²
4 bedroom detached house for sale in Long Hide, Princes Risborough, Buckinghamshire, HP27 0JX, HP27 — £630,000 • 4 bed • 2 bath • 1224 ft²
7 bedroom detached house for sale in Windmill Hill, Princes Risborough, Buckinghamshire, HP27 — £1,500,000 • 7 bed • 3 bath • 4522 ft²


















































































