**Standout Features:**
- Prominent Tudor-style commercial property
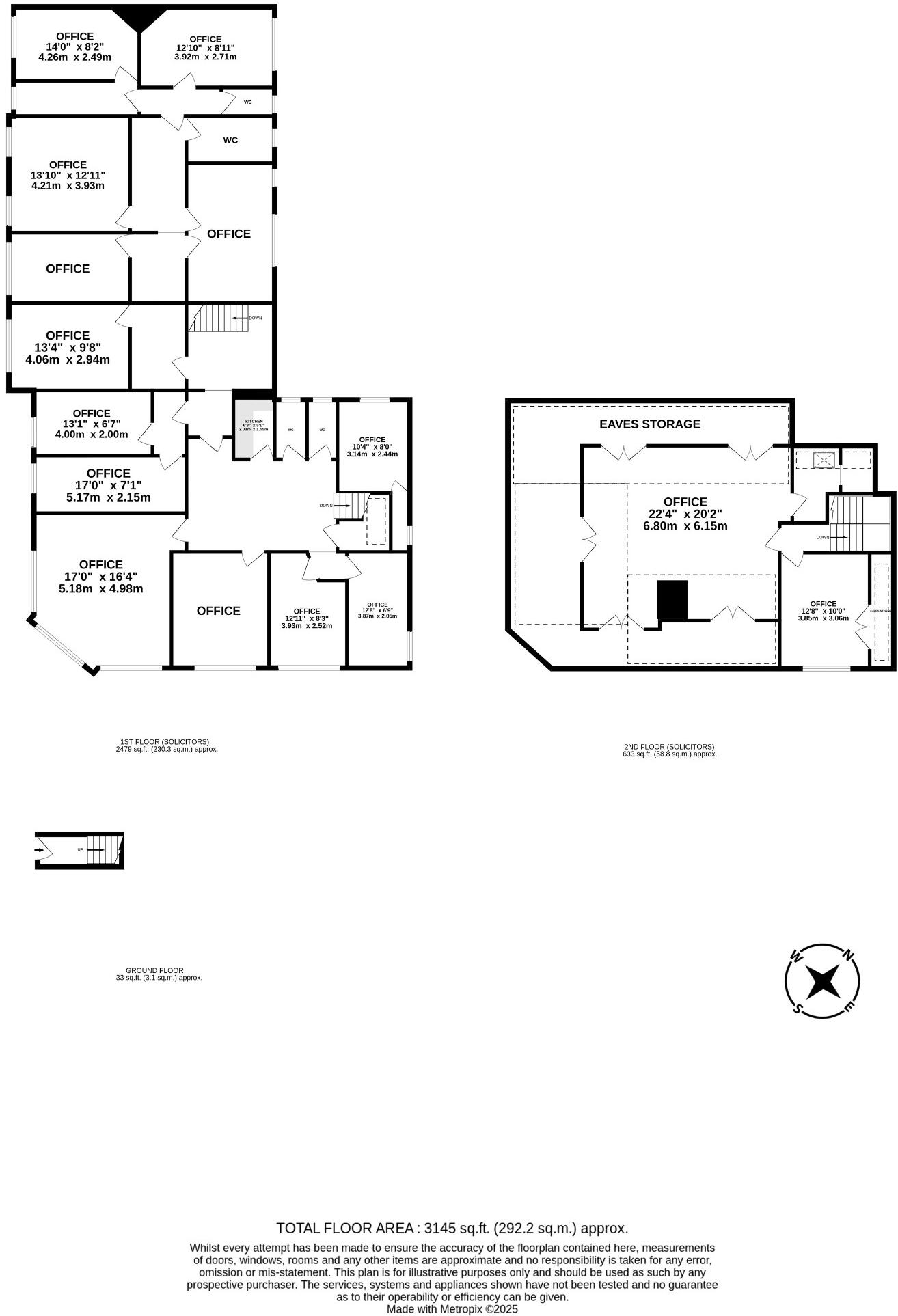
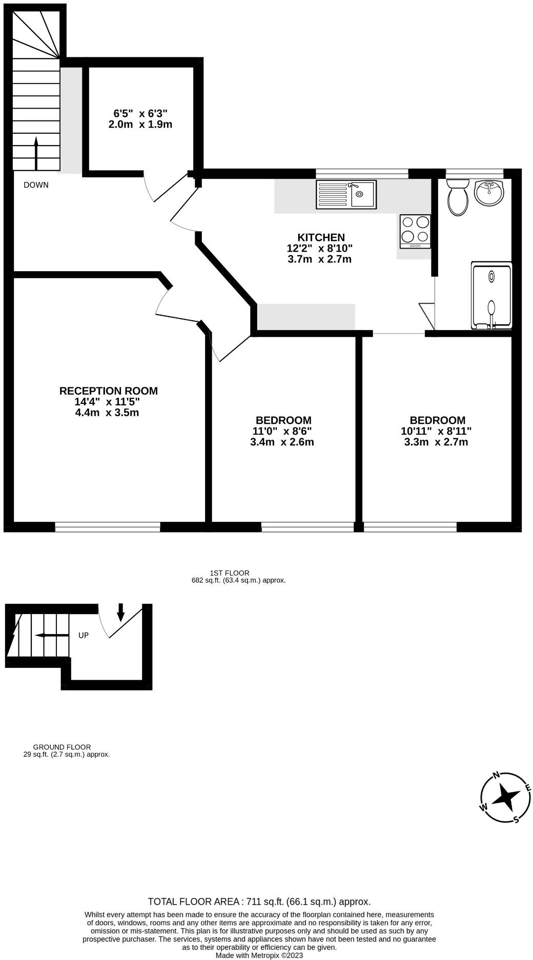
- Mixed-use: offices across two floors, three ground-floor shops, and a rear first-floor flat
- Excellent natural light with large windows
- Well-located in the affluent town center of Haslemere
- New leases granted, fully let investment opportunity
- Close proximity to major transport links and amenities
**Summary:**
Discover an exceptional investment opportunity with Angel Buildings, a striking Tudor-style property located in the heart of Haslemere. This expansive freehold asset boasts three floors of versatile space, including three retail shops on West Street, an additional shop facing High Street, and office accommodations above—ideal for savvy investors seeking steady income from fully let premises. High ceilings and large windows throughout ensure bright, inviting environments, while the prominent corner lot attracts significant foot traffic.
Located just steps from local amenities and at the center of an affluent neighborhood, this property offers easy access to major roads and railway connections, enhancing its rental appeal. With a total size of 6,851 square feet, there's also potential for future renovations or conversions, catering to evolving market requirements. Although the property is in an average crime area, it presents an attractive blend of character and revenue potential. Don’t miss out on the chance to own a landmark building in a thriving community—this opportunity won't last long!
 High street retail property for sale in 34-40 High Street, Haslemere, Surrey, GU27 — £4,700,000 • 7 bed • 1 bath • 20727 ft²
 High street retail property for sale in 34-40 High Street, Haslemere, Surrey, GU27 — £4,700,000 • 7 bed • 1 bath • 20727 ft² Commercial property for sale in Lower Street, Haslemere, GU27 — £475,000 • 1 bed • 1 bath • 6200 ft²
 Commercial property for sale in Lower Street, Haslemere, GU27 — £475,000 • 1 bed • 1 bath • 6200 ft² High street retail property for sale in 133, High Street, Godalming, GU7 1AF, GU7 — £875,000 • 1 bed • 1 bath • 2375 ft²
 High street retail property for sale in 133, High Street, Godalming, GU7 1AF, GU7 — £875,000 • 1 bed • 1 bath • 2375 ft² 2 bedroom detached house for sale in Lower Street, Haslemere, Surrey, GU27 — £300,000 • 2 bed • 2 bath • 500 ft²
 2 bedroom detached house for sale in Lower Street, Haslemere, Surrey, GU27 — £300,000 • 2 bed • 2 bath • 500 ft² Commercial property for sale in Camelsdale Road, Haslemere, GU27 — £300,000 • 3 bed • 1 bath • 1437 ft²
 Commercial property for sale in Camelsdale Road, Haslemere, GU27 — £300,000 • 3 bed • 1 bath • 1437 ft² Hairdressers or barber shop for sale in Farncombe Street, Godalming, GU7 — £155,000 • 1 bed • 1 bath • 1258 ft²
 Hairdressers or barber shop for sale in Farncombe Street, Godalming, GU7 — £155,000 • 1 bed • 1 bath • 1258 ft²














































