**Standout Features:**
- Fully refurbished one-bedroom ground floor flat
- Centrally located in Tynemouth, close to Long Sands Beach
- Modern interiors with a stylish open-plan lounge/diner
- Secure communal entrance and shared yard with seating area
- No upper chain for a quick move-in
- Low council tax and leasehold tenure
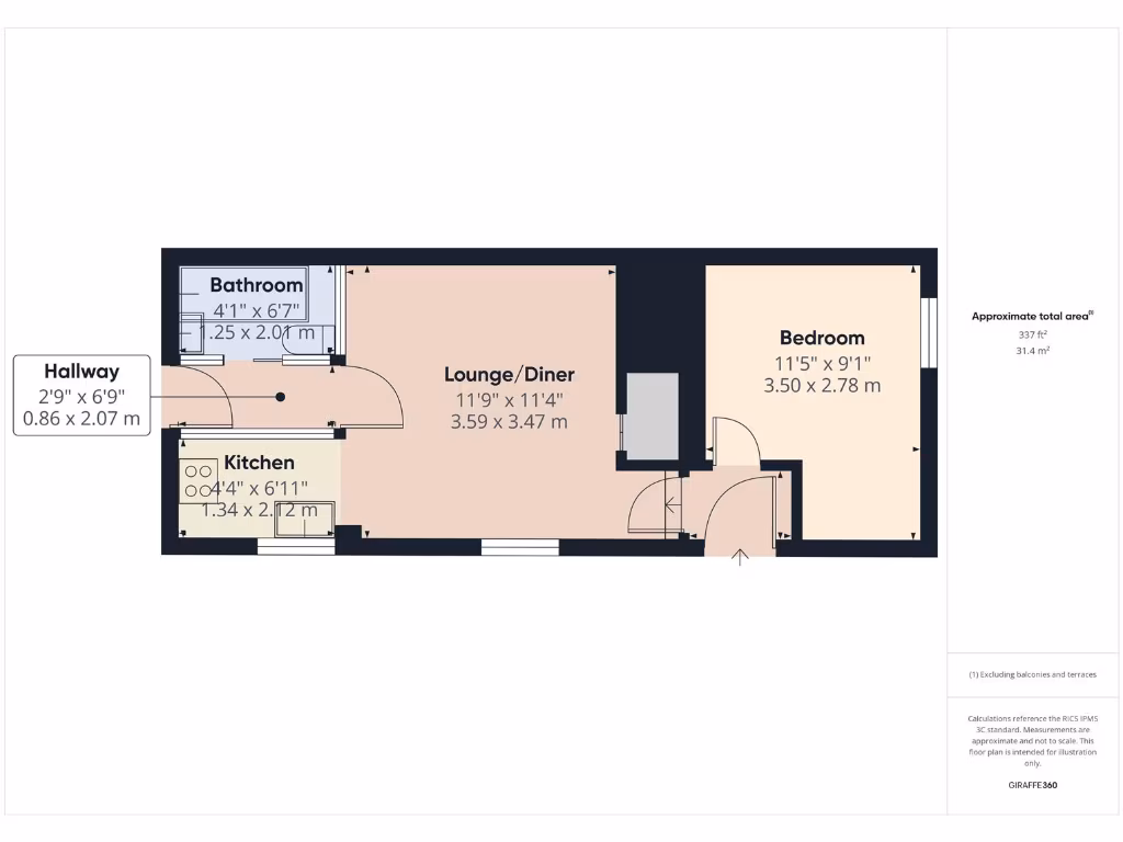
This impeccably refurbished one-bedroom ground floor flat offers a charming blend of modern comfort and convenience in the heart of Tynemouth. With a secure communal entrance leading to a private hallway, you’ll find a cosy lounge/diner featuring an attractive fireplace, perfect for relaxing evenings. The contemporary kitchen is equipped with integrated appliances, enhancing your living experience.
The double bedroom provides a tranquil retreat, while the stylish bathroom features a bath with a shower overhead for both comfort and practicality. A shared yard at the rear invites you to enjoy the outdoors, making it ideal for singles or couples looking for a stylish home by the sea.
The location is simply unbeatable—just a stone's throw from the award-winning Long Sands Beach, alongside a vibrant village filled with shops and restaurants. This property offers not only a comfortable living space but also excellent access to Newcastle via nearby transport links. Don’t miss out on this appealing opportunity—move in and start enjoying coastal living right away!
2 bedroom apartment for sale in Percy Park Road, Tynemouth, NE30 — £365,000 • 2 bed • 1 bath • 1193 ft²
1 bedroom apartment for sale in Percy Park, Tynemouth, NE30 — £235,000 • 1 bed • 1 bath • 657 ft²
2 bedroom apartment for sale in Hulne Avenue, Tynemouth, NE30 — £225,000 • 2 bed • 1 bath • 614 ft²
2 bedroom apartment for sale in 70 Hazeldene Court, Tynemouth, NE30 — £150,000 • 2 bed • 1 bath • 511 ft²
2 bedroom apartment for sale in Northumberland Terrace, Tynemouth, NE30 — £325,000 • 2 bed • 1 bath • 814 ft²
2 bedroom apartment for sale in Hazeldene Court, Tynemouth, NE30 — £155,000 • 2 bed • 1 bath • 549 ft²










































