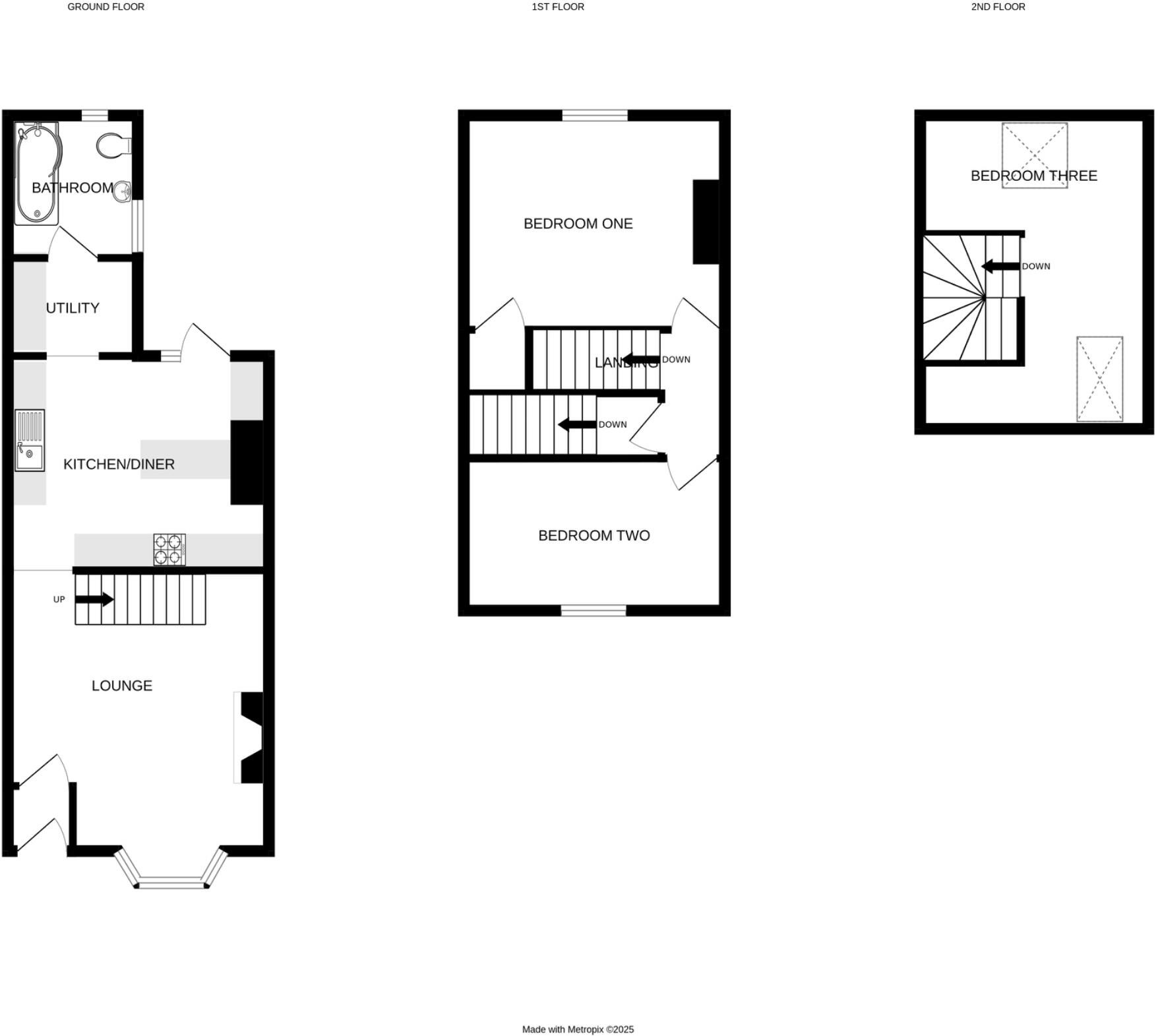
Extended Victorian terraced house with converted attic bedroom
This extended Victorian terraced house offers an affordable three-bedroom layout in a convenient Plymouth location, ideal for a first-time buyer or investor seeking rental potential. The property includes a living room with bay window, kitchen/diner, utility area and a converted attic bedroom, making efficient use of a compact 569 sq ft footprint.
A particular highlight is the private paved courtyard with a covered seating area and storage—the kind of low-maintenance outdoor space suited to city living and possible hot tub installation. Practical features include gas central heating, double glazing and a very low council tax band A, all of which help running costs remain modest.
Buyers should note the accommodation is small overall and the second-floor bedroom has reduced head height because it is an attic conversion. The wider neighbourhood is classified as deprived and local crime is reported above average, factors to weigh for families or those seeking longer-term tranquillity.
Positioned near shops, schools (several rated Good) and with good transport links to Plymouth city centre, the house represents a budget-friendly purchase with scope for cosmetic updating. Services are stated as mains but have not been independently verified, and purchasers should confirm legal and service details with their solicitor.
3 bedroom terraced house for sale in Cotehele Avenue, Keyham, Plymouth, Devon, PL2 — £160,000 • 3 bed • 1 bath • 832 ft²
3 bedroom terraced house for sale in Pomphlett Road, Plymouth, Devon, PL9 7BT, PL9 — £199,950 • 3 bed • 1 bath • 636 ft²
2 bedroom terraced house for sale in Townshend Avenue, keyham, Plymouth. Stylish 2-Bedroom Terraced Home – Perfect First Buy!, PL2 — £160,000 • 2 bed • 1 bath • 782 ft²
3 bedroom terraced house for sale in Melbourne Place, Plymouth, Devon, PL1 — £150,000 • 3 bed • 1 bath • 872 ft²
3 bedroom terraced house for sale in South Milton Street, Plymouth, Devon, PL4 — £220,000 • 3 bed • 1 bath • 948 ft²
3 bedroom terraced house for sale in Seaton Place, Plymouth, PL2 — £210,000 • 3 bed • 2 bath • 1035 ft²






























































