**Standout Features:**
- Full planning permission for conversion of an outbuilding into a two/three-bedroom home
- Ideally set in a peaceful, semi-rural location with open countryside views
- Extensive plot of about 0.6 acres, plus additional paddock land available for separate negotiation
- Abundant off-road parking and three-phase electrics already connected
- Chain-free sale for a hassle-free purchasing experience
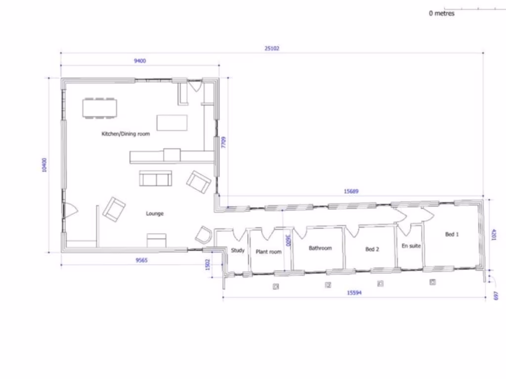
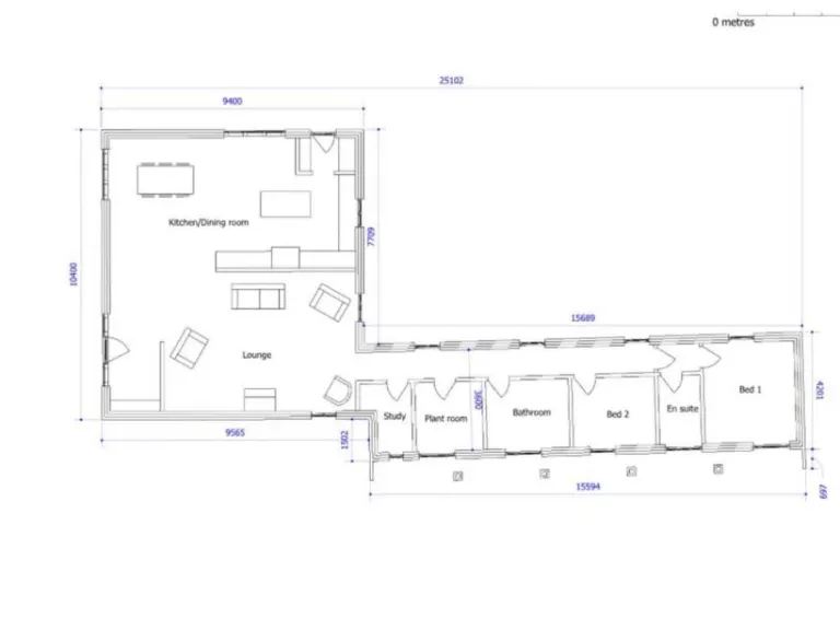
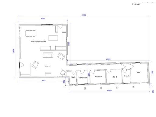
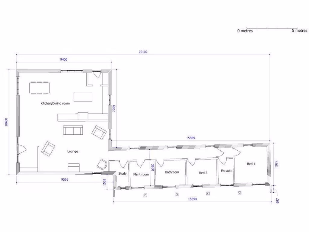
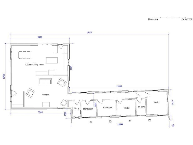
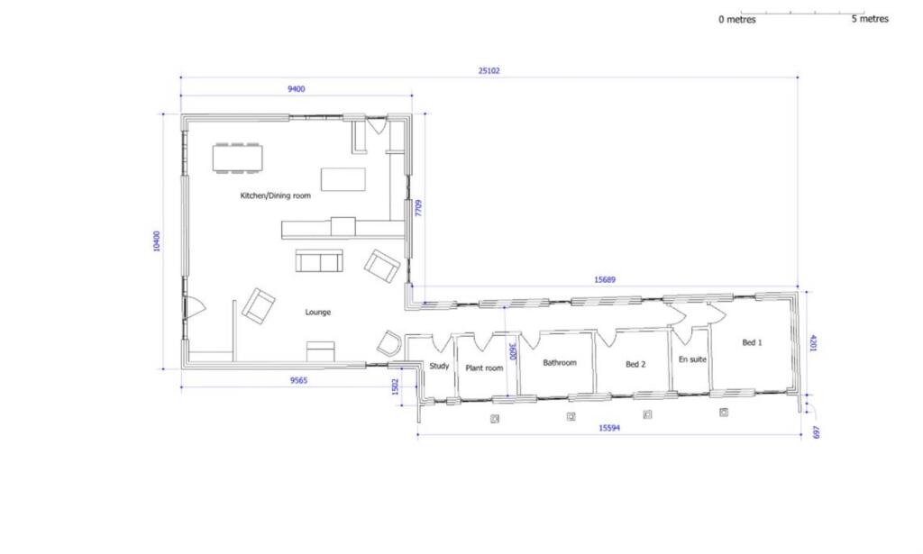
Discover an exceptional opportunity to transform an existing outbuilding into a modern, open-plan residence in the tranquil village of East Gomeldon. With full planning permission granted, this versatile space allows for the creation of a comfortable two or three-bedroom home with ensuite facilities, and a potential study. The generous 0.6-acre plot also features a large garden, ensuring ample outdoor space for family activities or gardening.
Nestled away from the hustle and bustle, the property offers a serene rural backdrop with picturesque views, while still being conveniently close to Salisbury's vibrant amenities and local schools. Ideal for first-time buyers, families, or investors seeking a project brimming with potential, this opportunity supports both residential comfort and possible equestrian ventures. Although the outbuilding requires renovation, the extensive groundwork is set, making it a true blank canvas for your design aspirations.
Be quick to seize this unique plot as the opportunity for such a desirable property in a thriving area may not last long. Schedule your viewing today and envision the future of this remarkable space!











































