CT21 4PH - 3 bedroom farm house for sale in CourtAtStreet, Hythe, CT21

View on Property Piper

3 bedroom farm house for sale in Court-At-Street, Hythe, CT21

Summary - HONEYPOT FARM COURT AT STREET HYTHE CT21 4PH

3 bed 1 bath Farm House

**Standout Features:**
- Stunning views across Romney Marsh and towards France
- Spacious 3-bedroom farmhouse with a newly refurbished 1-bedroom annexe
- Two converted barns currently utilized as holiday lets
- Versatile commercial barn used for events with potential for additional income
- Approximately 3.80 acres of land, including grazing pasture and mature gardens
- Excellent off-street parking and low crime rate in a tranquil hamlet setting
- Planning permission for further income-generating opportunities

**Summary:**
Honeypot Farm presents an exceptional opportunity for rural living with the added benefit of income potential. This newly renovated 3-bedroom farmhouse is complemented by a stylish one-bedroom annexe and two converted barns, both of which are currently thriving as holiday lets. Encompassing approximately 3.80 acres, the expansive grounds include mature gardens, agricultural buildings, and even a commercial space ideal for events, ensuring versatility for the discerning buyer.

Nestled in a picturesque hamlet, the property offers a peaceful escape yet remains well-connected with nearby amenities. The serene landscape, featuring far-reaching views, creates a perfect retreat for families, investors, or those seeking to embrace a countryside lifestyle. Given its unique offerings and potential for further development, this captivating property is not expected to stay on the market for long—seize the opportunity to make it your own today!

Property Details

Brochure Descriptions

Image Descriptions

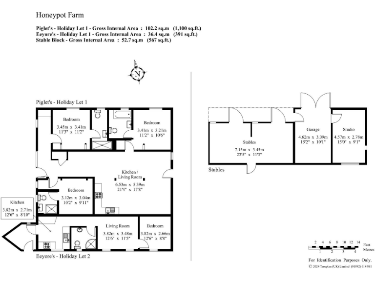
Floorplan Description

Rooms

Textual Property Features

Detected Visual Features

Nearby Schools

Nearest Bars And Restaurants

,,,,}

Nearest General Shops

,,}

Nearest Grocery shops

,,}

Nearest Supermarkets

,,}

Nearest Religious buildings

,,}

Nearest Medical buildings

,,,}

Nearest Leisure Facilities

,,,,}

Nearest Tourist attractions

,,}

Nearest Train stations

,,,,}

Nearest Bus stations and stops

,,,,}

Nearest Hotels

,,}

Tags

Local Market Stats

AirBnB Data

Similar Properties

Meta

High Res Images

Compatible Images

Low res Images

Thumbnails

Raw Images

High Res Floorplan Images

Compatible Floorplan Images

Low res Floorplan Images

FloorplanImages Thumbnail

Raw Floorplan Images