SE15 3RX - 3 bedroom semidetached house for sale in Consort Road, Lond…

View on Property Piper

3 bedroom semi-detached house for sale in Consort Road, London, SE15

Summary - 173 CONSORT ROAD, LONDON SE15 3RX

3 bed 2 bath Semi-Detached

**Standout Features:**
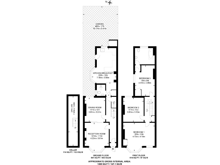
- Three double bedrooms and two bathrooms
- Spacious reception areas with high ceilings
- Private garden leading from an eat-in kitchen
- Potential for side and rear extensions, plus loft conversion (STPP)
- Excellent transport links to East Dulwich, Nunhead, and Peckham Rye
- Chain-free and available for immediate viewing
- Ultrafast broadband availability

**Concerns:**
- Requires modernisation throughout
- High local crime rate
- Small plot size and potential renovation wear

Discover this Victorian semi-detached gem, ideal for families or investors seeking a project! With three double bedrooms, two spacious receptions, and an eat-in kitchen opening onto a private garden, this property boasts generous living spaces that offer comfortable family life. The potential for extension (STPP) allows for future customization, giving you the opportunity to create your dream home.

Located in the vibrant SE15 area, you'll benefit from exceptional transport links, connecting you effortlessly to East Dulwich, Nunhead, and London Bridge. While the property requires modernisation and has a small plot size, its charm and the potential for significant value can attract those ready to invest in renovations.

Local amenities abound, including schools with notable Ofsted ratings, bars, cafes, and parks, ensuring family-friendly living at its best. Early viewings are recommended for those looking to seize this unique opportunity—don’t miss out on this chance to create a perfect home in an energetic and established neighborhood!

Property Details

Image Descriptions

Rooms

Textual Property Features

Detected Visual Features

EPC Details

Nearby Schools

Nearest Bars And Restaurants

,,,,}

Nearest General Shops

,,}

Nearest Grocery shops

,,}

Nearest Supermarkets

,,}

Nearest Religious buildings

,,}

Nearest Medical buildings

,,,}

Nearest Airports

,,}

Nearest Leisure Facilities

,,,,}

Nearest Tourist attractions

,,}

Nearest Train stations

,,,,}

Nearest Bus stations and stops

,,,,}

Nearest Hotels

,,}

Tags

Local Market Stats

AirBnB Data

Similar Properties

Meta

High Res Images

Compatible Images

Low res Images

Thumbnails

Raw Images

High Res Floorplan Images

Compatible Floorplan Images

Low res Floorplan Images

FloorplanImages Thumbnail

Raw Floorplan Images