Spacious family estate with huge grounds and scope for sympathetic modernisation.
Private 1.3-acre wooded plot with mature trees and lawns
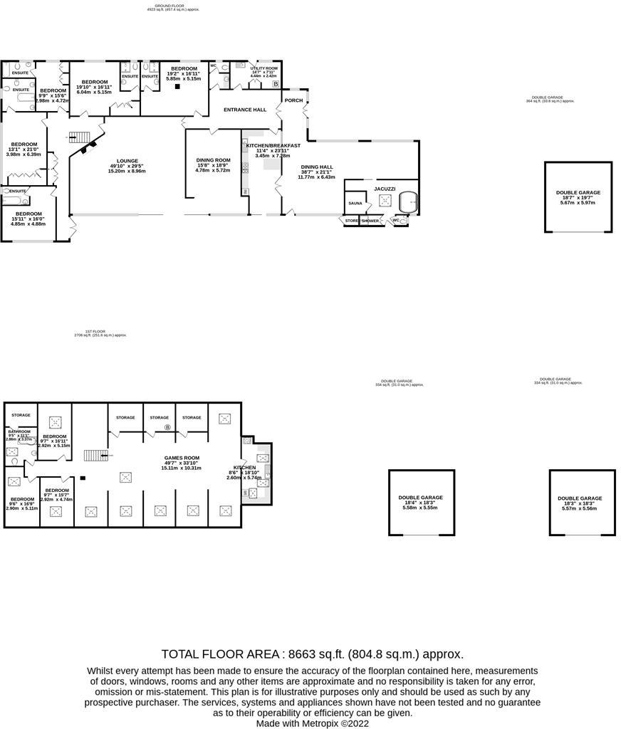
Over 8,000 sqft of accommodation across multiple floors
Discrepancy in advertised bedrooms/bathrooms—please verify
Basement contains original tiled pool, currently used for storage
Three detached garages and gated driveway provide significant parking
Large lounge with cinema screen and wood burner, family-friendly layout
Built c.1976–82; requires updating and likely insulation improvements
Slow broadband speeds; great mobile signal and low local crime
Set within about 1.3 acres of private, wooded grounds, this expansive detached house offers rare space and privacy on the Ravenshead fringe. The property presents large versatile living areas, a substantial ground-floor reception with cinema screen and wood burner, and a basement that retains the original tiled pool now used for storage. Three detached garages and a gated driveway provide significant vehicle and storage capacity.
The house has been extended to create additional first-floor accommodation including a kitchenette, bedrooms and a bathroom, so it can function as a cohesive family home or offer semi-independent space for guests or older children. Mature trees and generous lawns give a secluded, countryside feel while remaining close to local schools rated Good by Ofsted.
Important practical points: the listing materials contain inconsistent bedroom/bathroom counts (references to six and seven bedrooms/bathrooms), so purchasers should verify exact room numbers. The property dates from the late 1970s/early 1980s and will benefit from updating throughout; broadband speeds are reported slow and insulation may be partial. There is no upward chain and no flood risk recorded.
This is a compelling opportunity for a family seeking privacy, space and character who are prepared to carry out sympathetic modernisation. The plan and room sizes support multiple layout options; the former pool basin and large plot give scope for conversion, landscaping or extension subject to planning.
3 bedroom detached house for sale in Top Road, Blidworth, MANSFIELD, NG21 — £425,000 • 3 bed • 2 bath • 1073 ft²
4 bedroom bungalow for sale in Longdale Lane, Ravenshead, Nottingham, Nottinghamshire, NG15 — £700,000 • 4 bed • 2 bath • 3058 ft²
6 bedroom detached house for sale in Lindrick Common, Worksop, Nottinghamshire, S81 — £3,250,000 • 6 bed • 5 bath • 10850 ft²
4 bedroom detached house for sale in Mapperley Hall Drive, Mapperley Park, NG3 5EW, NG3 — £1,550,000 • 4 bed • 3 bath • 7192 ft²
5 bedroom detached house for sale in Nottingham Road, Ravenshead, Nottingham, NG15 — £875,000 • 5 bed • 4 bath • 2896 ft²
5 bedroom detached house for sale in The Spinney, Harlow Wood, Mansfield, NG18 — £595,000 • 5 bed • 3 bath • 2371 ft²






















































