**Key Features:**
- Freehold double fronted terraced house
- 4 spacious bedrooms, 2 bathrooms
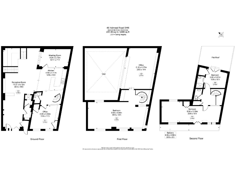
- Approximately 2,496 sq ft ideal for versatile use
- Development potential to convert back to residential
- Currently functioning as a modern office space
- Close to excellent transport links
- Located in a cosmopolitan area with high demand
**Summary:**
Discover a remarkable opportunity in the heart of Fulham with this expansive double fronted 4-bedroom terraced house. Spanning approximately 2,496 square feet across three levels, this freehold property boasts high ceilings and abundant natural light, thanks to its stylish open-plan design and numerous skylights. Currently utilized as a contemporary office space, it presents a unique chance to revert it to a beautiful residential home, ideal for families or savvy investors looking to capitalize on the development potential.
Situated on Holmead Road, this property not only exudes charm but also offers a prime urban lifestyle close to well-regarded schools like the outstanding London Oratory School and Servite RC Primary School. The vibrant local area provides a plethora of amenities, ensuring convenience at your doorstep. While the plot size is small, the potential for adaptability into a family-oriented living space is substantial. With such features and the promising area, opportunities like this are seldom available for long! Don’t miss your chance to envision life in this unique property.
4 bedroom terraced house for sale in Holmead Road, London, SW6 — £1,850,000 • 4 bed • 2 bath • 2497 ft²
Office for sale in 522-524 Fulham Road, London, SW6 5NR, SW6 — £3,500,000 • 1 bed • 1 bath • 6655 ft²
4 bedroom house for sale in Wandsworth Bridge Road, London, SW6 — £1,600,000 • 4 bed • 1 bath • 3046 ft²
4 bedroom house for sale in Holmead Road, Fulham, SW6 — £2,500,000 • 4 bed • 4 bath • 2049 ft²
3 bedroom mixed use property for sale in Wandsworth Bridge Road, London, SW6 — £1,300,000 • 3 bed • 11 bath • 2429 ft²
4 bedroom maisonette for sale in Dawes Road, Fulham, SW6 — £695,000 • 4 bed • 1 bath • 1250 ft²










































