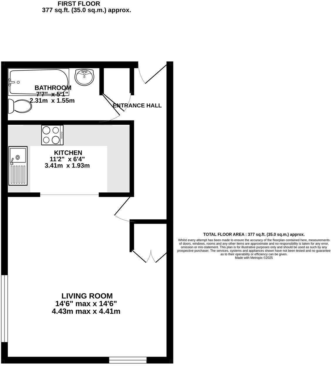
**Key Features:**
- First-floor retirement apartment in Ashridge Court
- Open-plan layout combining lounge/bedroom area
- Kitchen with adequate storage and countertops
- Convenient access via stairs or elevator
- Communal gardens and lounge for socializing
- On-site resident manager and 24-hour Careline system
- Excellent location, steps from Newbury train station and town center
- EPC Rating: B
- Chain-free sale
This inviting first-floor retirement apartment in Ashridge Court offers an exceptional living space designed for comfort and security. With its convenient location just a stone’s throw from Newbury train station and within walking distance to the town center, residents can enjoy easy access to local amenities and transport links. The open-plan layout, featuring a combined lounge and bedroom, allows for flexible living arrangements, while the modern kitchen ensures functionality.
Residents will appreciate the communal facilities, including a lounge and beautifully maintained gardens, ideal for relaxation and socializing. The property is enhanced by an on-site manager from 9 am to 5 pm and a 24-hour Careline for added peace of mind. Although compact in size (377 sq ft), this apartment is a perfect blend of convenience, community, and tranquillity—offering an excellent opportunity for those seeking a low-maintenance retirement lifestyle. Don’t miss out on this charming apartment that combines comfort with a vibrant, supportive environment!
2 bedroom retirement property for sale in Benedict Court, Western Avenue, Newbury, RG14 1AR, RG14 — £239,950 • 2 bed • 1 bath • 764 ft²
1 bedroom retirement property for sale in Ashridge Court, Newbury, RG14 — £100,000 • 1 bed • 1 bath • 422 ft²
1 bedroom retirement property for sale in The Maltings, Newbury, RG14 5HZ, RG14 — £185,000 • 1 bed • 1 bath • 396 ft²
1 bedroom retirement property for sale in The Maltings, Newbury, RG14 5HZ, RG14 — £185,000 • 1 bed • 1 bath • 411 ft²
1 bedroom retirement property for sale in Ashridge Court, Newbury, RG14 7LL, RG14 — £110,000 • 1 bed • 1 bath • 480 ft²
1 bedroom apartment for sale in West Mills, Newbury, Berkshire, RG14 — £129,995 • 1 bed • 1 bath • 511 ft²














































