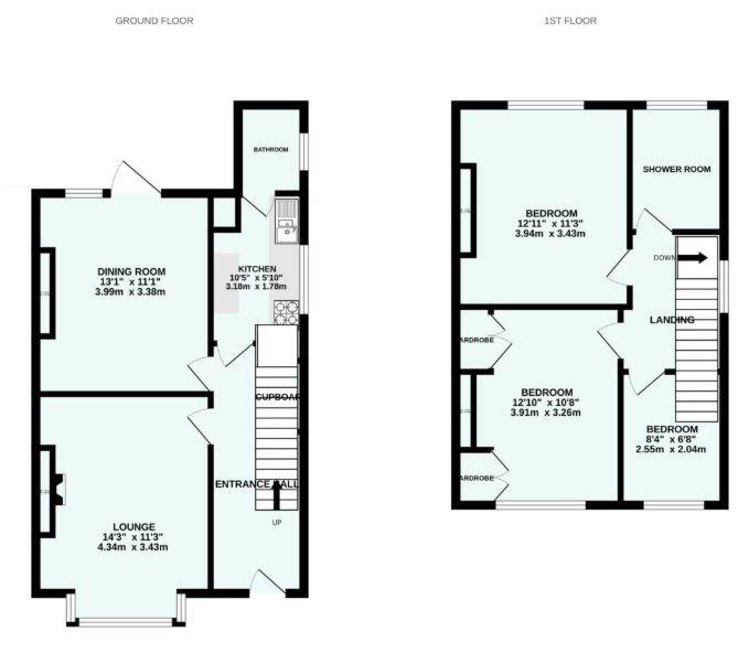
**Standout Features:**
- Beautifully presented 3-bedroom semi-detached home
- Spacious living areas with abundant natural light
- Two modern bathrooms for family convenience
- Level back garden, perfect for entertaining or relaxation
- Potential for parking in a desirable area (subject to permits)
- Close proximity to amenities, public transport, and schools
This charming Victorian semi-detached property offers spacious living with 710 square feet of potential to accommodate a growing family or savvy investors. Bathed in natural light, the generous lounge features a large bay window and is complemented by a bright dining area opening onto a well-maintained, level back garden, ideal for outdoor gatherings or children's play. The property contains three cozy bedrooms, two of which are doubles with built-in wardrobes, ensuring comfort for everyone. Two bathrooms—one conveniently located on the ground floor—add to the home's significant family-friendly appeal.
Nestled between Plainmoor and St Marychurch, you're just a short walk from scenic Babbacombe Downs, local shops, and cafes, making this an excellent choice for family living. While the property is in good condition, the small layout offers opportunities for creative renovations and enhancements to suit your style. Don’t miss out on this well-maintained gem in a vibrant, young community with excellent transport links—perfect for first-time buyers or those seeking a solid investment. Priced attractively between £250,000 - £260,000, this property won't be on the market for long. Secure your future in this delightful home today!
3 bedroom semi-detached house for sale in Rowley Road, Torquay, TQ1 4PX, TQ1 — £342,000 • 3 bed • 2 bath • 1239 ft²
3 bedroom semi-detached house for sale in Petitor Road, Torquay, TQ1 — £275,000 • 3 bed • 2 bath • 1001 ft²
3 bedroom semi-detached house for sale in Briwere Road, Torquay, TQ1 — £340,000 • 3 bed • 2 bath • 1195 ft²
3 bedroom terraced house for sale in Western Road, St Marychurch, Torquay, Devon. , TQ1 — £295,000 • 3 bed • 1 bath • 1273 ft²
3 bedroom semi-detached house for sale in Byron Road, St Marychurch, Torquay, Devon, TQ1 — £250,000 • 3 bed • 1 bath • 859 ft²
3 bedroom semi-detached house for sale in Teignmouth Road, Torquay, TQ1 — £250,000 • 3 bed • 1 bath • 1012 ft²


























































