Southwest-facing waterside apartment with marina views — ideal buy-to-let with tenants in situ..
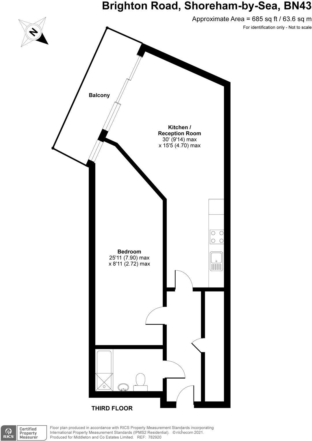
- Direct uninterrupted marina and river views from private balcony
- Spacious open-plan kitchen-reception, integrated appliances
- Large one-bedroom apartment, c.685 sqft
- Tenants in situ — immediate rental income
- Leasehold with ground rent £150 (other charges/term unknown)
- High flood risk — insurance/mitigation considerations
- Local area recorded crime: very high — security/insurance impacts
- Communal courtyard; no private garden, waterside access only
A third-floor, southwest-facing apartment in Mariner Point offering direct, uninterrupted marina and river views from a private balcony. The open-plan kitchen-reception with integrated appliances and the double bedroom make this a straightforward, low-maintenance home or rental unit. At approximately 685 sq ft it is larger than many one-bedroom flats, giving flexible living space and good lettable accommodation.
The property is sold with tenants in situ, providing immediate rental income and reducing void risk for an investor buyer. Transport links are strong via the A27 and nearby rail connections; Shoreham’s amenities, airport and coastal location add ongoing tenant appeal. The development includes a communal courtyard and waterside access that heighten marketability to nautical enthusiasts.
Buyers should note material negatives: the site is in a high flooding-risk area and the local recorded crime level is very high — both factors likely to affect insurance costs, mortgage availability and some tenant demand. The flat is leasehold with a small ground rent of £150 (other service charges and lease length unknown). These matters should be checked prior to offer.
Overall this is a modern, well-located waterside one-bedroom that suits investors seeking immediate income or owner-occupiers wanting a coastal pied-à-terre — provided flood, security and leasehold implications are accepted and investigated.
2 bedroom apartment for sale in Brighton Road, Shoreham-By-Sea, BN43 — £350,000 • 2 bed • 1 bath • 1111 ft²
1 bedroom flat for sale in Brighton Road, Shoreham-By-Sea, BN43 — £280,000 • 1 bed • 1 bath • 653 ft²
1 bedroom apartment for sale in Brighton Road, Shoreham, BN43 — £260,000 • 1 bed • 1 bath • 549 ft²
1 bedroom flat for sale in Mariner Point, Brighton Road, Shoreham by Sea, BN43 — £280,000 • 1 bed • 1 bath • 602 ft²
2 bedroom apartment for sale in Brighton Road, Shoreham-By-Sea, BN43 — £340,000 • 2 bed • 1 bath • 744 ft²
1 bedroom apartment for sale in Mariner Point, 83 Brighton Road, Shoreham, West Sussex, BN43 — £260,000 • 1 bed • 1 bath • 502 ft²














































