DH1 3FT - 4 bedroom detached house for sale in Symeon Court, Durham,…

View on Property Piper

4 bedroom detached house for sale in Symeon Court, Durham, DH1

Summary - 2 Symeon Court, Durham DH1 3FT

4 bed 2 bath Detached

**Standout Features:**
- Newly built, contemporary four-bedroom detached home
- Prime location within the prestigious Mount Oswald Estate
- Open-plan living space with Neff integrated appliances
- Underfloor heating throughout the ground floor
- Solar panels and air source heat pump for energy efficiency
- Master suite with balcony and luxurious en-suite featuring Porcelanosa finishes
- Private driveway and attached garage
- Landscaped gardens

**Potential Concerns:**
- Newly built, so no longstanding structural concerns noted, but regular maintenance may be required.

Discover modern living in this exquisite four-bedroom detached home located in the sought-after Mount Oswald Estate. This newly constructed residence offers a blend of luxury and functionality tailored for family life. Immerse yourself in the heart of the home, where the open-plan kitchen and dining area is adorned with premium Neff appliances, a central island, and elegant herringbone flooring. Flooded with natural light from full-height glazed bifold doors and French doors, the seamless flow between indoor and outdoor spaces makes entertaining effortless.

Upstairs, the principal suite boasts built-in wardrobes, a lavish en-suite with premium finishes, and private balcony access—ideal for serene mornings. Three additional spacious bedrooms provide versatility for guests or family needs. Benefit from energy-efficient features including solar panels and an air source heat pump. The landscaped gardens complement the property’s charm, while a private driveway and garage enhance convenience.

Positioned just minutes from Durham City, enjoy unmatched access to local amenities, top-rated schools, and transport links, making this a prime location for families and professionals alike. Don't miss out on this exceptional opportunity to invest in contemporary living; experiences like this don’t last long!

Property Details

Image Descriptions

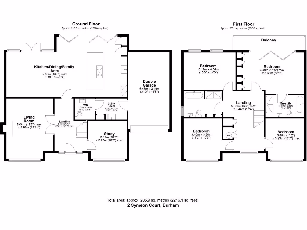
Floorplan Description

Rooms

Textual Property Features

Detected Visual Features

Nearby Schools

Nearest Bars And Restaurants

,,,,}

Nearest General Shops

,,}

Nearest Grocery shops

,,}

Nearest Supermarkets

,,}

Nearest Religious buildings

,,}

Nearest Medical buildings

,,,}

Nearest Leisure Facilities

,,,,}

Nearest Tourist attractions

,,}

Nearest Train stations

,,,,}

Nearest Bus stations and stops

,,,,}

Nearest Hotels

,,}

Tags

Local Market Stats

Similar Properties

Meta

High Res Images

Compatible Images

Low res Images

Thumbnails

Raw Images

High Res Floorplan Images

Compatible Floorplan Images

Low res Floorplan Images

FloorplanImages Thumbnail

Raw Floorplan Images