Roomy living, garage and approved extension potential for growing families.
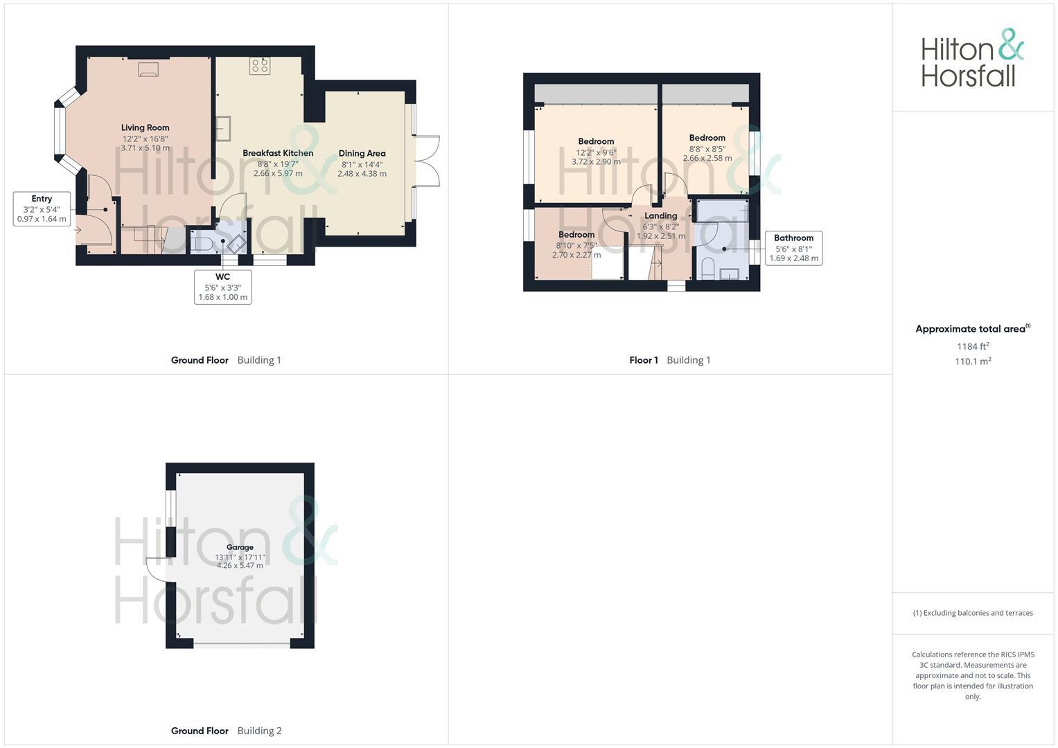
- Extended three-bedroom family home with open-plan breakfast kitchen and dining area
- Planning permission approved for rear annex extension (Ref: 25/0036/LHE)
- Driveway parking plus detached powered garage for secure storage
- Enclosed low-maintenance rear garden laid with artificial lawn
- Modern family bathroom and ground-floor WC for convenience
- Cavity walls assumed uninsulated; energy upgrades may be needed
- Double glazing present but installation dates unknown
- Located in a deprived area; consider wider neighbourhood factors
This extended three-bedroom end-of-terrace on Wordsworth Road offers practical family living with immediate move-in appeal. The open-plan breakfast kitchen and dining area with French doors creates a sociable hub, while a bay-fronted living room with a wood-burning stove delivers cosy, everyday comfort. A modern first-floor bathroom and convenient ground-floor WC add useful flexibility.
Outside, the property benefits from driveway parking and a detached garage with power and lighting — rare extras that give secure storage or workshop space. The enclosed rear garden is low-maintenance (artificial lawn) and private, making it ideal for children or simple entertaining. Planning permission has been granted for a rear extension to create an annex (Ref: 25/0036/LHE), offering genuine scope to increase living space or create independent accommodation.
Buyers should note some practical considerations: the home sits in an area classed as economically deprived, and external walls are cavity-built with no confirmed insulation — buyers may wish to budget for improving energy efficiency. Double glazing is present but installation dates are unknown. The house is an average overall size (approximately 872 sq ft), so space-conscious families should view to assess fit. Council tax is low, and mains gas central heating provides reliable warmth.
For families seeking a well-presented, easily maintained home with development potential and useful parking/garage space, this property is a strong contender. For buyers prioritising top energy performance or larger living footprints, factor in potential retrofit work or the planned extension when considering the purchase.
3 bedroom terraced house for sale in Fothergill Street, Colne, BB8 — £159,950 • 3 bed • 1 bath • 881 ft²
3 bedroom semi-detached house for sale in Burnley Road, Colne, BB8 — £179,950 • 3 bed • 1 bath • 926 ft²
3 bedroom terraced house for sale in Skipton Road, Colne, BB8 — £154,950 • 3 bed • 1 bath • 1122 ft²
4 bedroom detached house for sale in Ing Dene Avenue, Colne, BB8 — £225,000 • 4 bed • 2 bath • 980 ft²
3 bedroom detached house for sale in Claremont Street, Colne, BB8 — £392,500 • 3 bed • 3 bath • 1662 ft²
3 bedroom semi-detached house for sale in Broadhurst Way, Brierfield, BB9 — £185,000 • 3 bed • 1 bath • 713 ft²


































































































