Single-storey living with parking and garden near Lymington and the New Forest.
Chain-free two-bedroom bungalow with conservatory
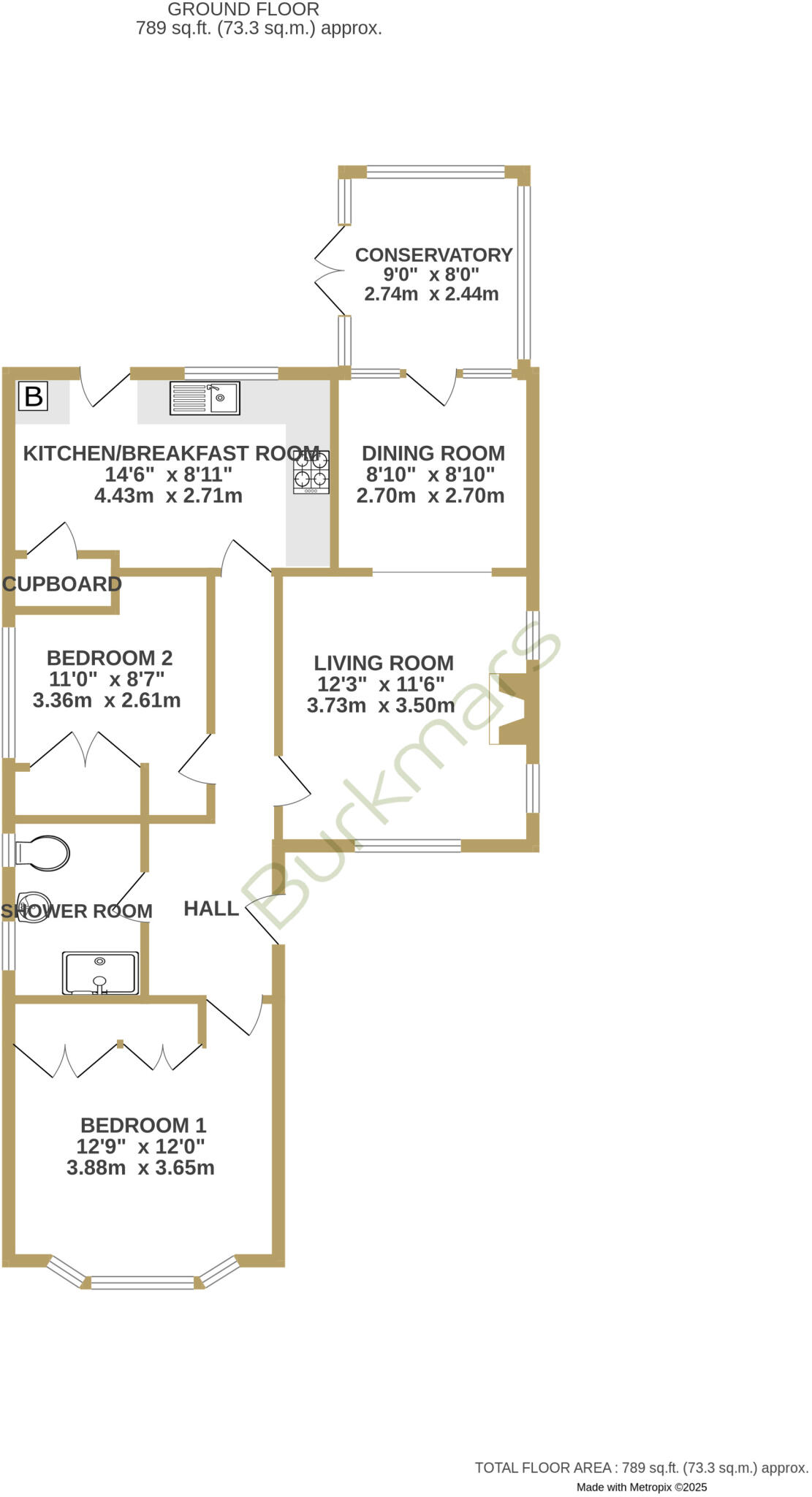
This two-bedroom bungalow on Gordon Road is a practical, single-storey home suited to downsizers or those seeking a low-maintenance base close to Lymington and the New Forest. Offered chain-free and set on a decent plot, the layout includes a bay-fronted principal bedroom, separate dining room, and a bright conservatory overlooking the rear garden.
The property benefits from double glazing (installed after 2002), mains gas central heating with a boiler and radiators, and a gated off-street driveway. With about 789 sq ft of accommodation, the home is comfortable as-is but also offers clear potential to modernise or reconfigure to suit contemporary living preferences.
Practical drawbacks to note: the bungalow has a single shower room plus a separate WC, a traditional internal layout that may not suit everyone, and it requires some updating in parts. The property was constructed between 1950–1966 and is semi‑detached, so buyers should allow for typical mid‑20th century maintenance or improvement work.
Local amenities include nearby primary and secondary schools with Good Ofsted ratings, bus links, and easy access to Lymington town centre. The location offers a balance of town conveniences and proximity to the New Forest for those who want quick access to open countryside.
2 bedroom bungalow for sale in Brownings Close, Pennington, Lymington, Hampshire, SO41 — £495,000 • 2 bed • 1 bath • 975 ft²
2 bedroom bungalow for sale in Woodley Gardens, Lymington, Hampshire, SO41 — £380,000 • 2 bed • 1 bath • 705 ft²
2 bedroom semi-detached bungalow for sale in Greenway Close, Lymington, SO41 — £440,000 • 2 bed • 1 bath • 802 ft²
2 bedroom detached bungalow for sale in Laurel Close, Hordle, Lymington, SO41 — £375,000 • 2 bed • 1 bath • 931 ft²
2 bedroom bungalow for sale in Harford Close, Pennington, Hampshire, SO41 — £525,000 • 2 bed • 1 bath • 1137 ft²
2 bedroom bungalow for sale in Lawn Road, Pennington, Lymington, Hampshire, SO41 — £425,000 • 2 bed • 1 bath • 791 ft²










































































