ME16 8NJ - 3 bed victorian three storey house in Tonbridge Road, ME16…

View on Property Piper

3 bedroom terraced house for sale in Tonbridge Road, Maidstone, Kent, ME16

Summary - 419 TONBRIDGE ROAD MAIDSTONE ME16 8NJ

3 bed 1 bath Terraced

Spacious Victorian terraced house with large attic room and garden, ideal to modernise.
Victorian mid-terrace over three floors and attic bedroom
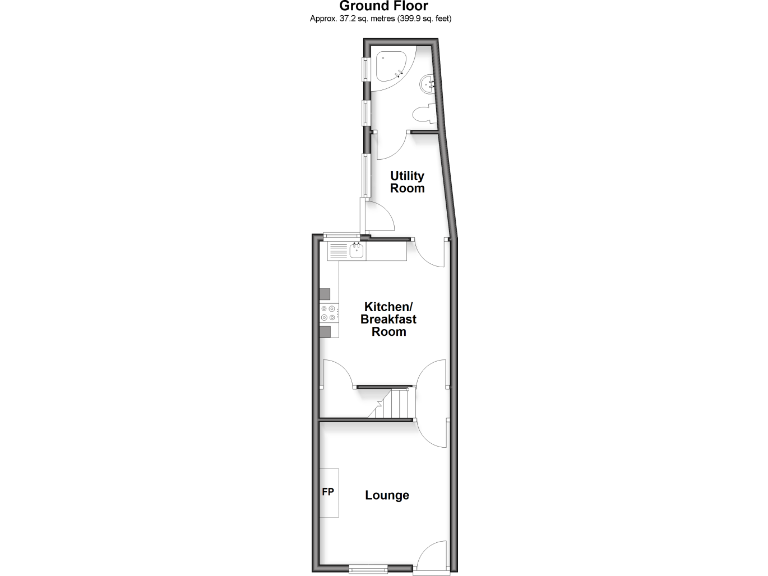
A spacious Victorian mid-terrace arranged over three floors, this freehold town house offers genuine potential for a family or first-time buyer prepared to update. The property includes a large attic room that could serve as a master bedroom, home office or play space, plus a generous open-plan kitchen/breakfast room and separate utility. Double glazing and mains gas central heating are already installed.

The rear garden is large for the area but currently overgrown and in need of maintenance; the small front frontage and chain-link fencing will require simple improvement to enhance kerb appeal. Internal rooms are well proportioned (total c.926 sq ft) but the house needs modernisation throughout — cosmetic and likely kitchen/bathroom upgrades are required.

Location is a strong selling point: easy walking distance to Maidstone town centre, good local amenities and several well-rated primary and secondary schools nearby, including Jubilee Primary and Oakwood Park Grammar. Broadband and mobile signal are excellent, and there is no flooding risk.

Practical considerations: the property sits on solid brick walls (likely no insulation) and the age of glazing and some services is unspecified, so buyers should budget for potential insulation, electrical or other improvements. Council tax is described as cheap and tenure is freehold, simplifying purchase logistics.

Property Details

Image Descriptions

Floorplan Description

Rooms

Textual Property Features

Target Audience

AI Tags

Detected Visual Features

EPC Details

Nearby Schools

Nearest Bars And Restaurants

,,,,}

Nearest General Shops

,,}

Nearest Grocery shops

,,}

Nearest Supermarkets

,,}

Nearest Religious buildings

,,}

Nearest Medical buildings

,,,}

Nearest Leisure Facilities

,,,,}

Nearest Tourist attractions

,,}

Nearest Train stations

,,,,}

Nearest Bus stations and stops

,,,,}

Nearest Hotels

,,}

Tags

Local Market Stats

AirBnB Data

Similar Properties

Meta

High Res Images

Compatible Images

Low res Images

Thumbnails

Raw Images

High Res Floorplan Images

Compatible Floorplan Images

Low res Floorplan Images

FloorplanImages Thumbnail

Raw Floorplan Images