Generous garden, double garage and good schools close by.
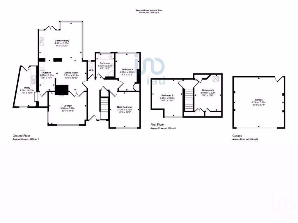
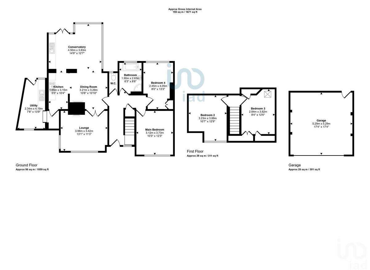
Four bedrooms with extended rear for additional living space
A spacious four-bedroom semi-detached home arranged over an extended plan, offering comfortable family living in a well-regarded Oldbury neighbourhood. The house benefits from a generous rear garden, large driveway and a separate double garage — practical for parking, storage or a home workshop. Good local transport links and several highly rated primary schools are within easy reach, making this a convenient base for families.
The property dates from the 1950s and has been extended to the rear; double glazing was added post-2002 and heating is mains gas via a boiler and radiators. These features provide reasonable comfort now, while the plot and loft/dormer layout present clear potential for further improvement or reconfiguration to suit a growing household.
Buyers should note there is a single bathroom and a downstairs WC only, which may be limiting for larger families until upgraded. The cavity walls were built without insulation (assumed), so installing wall or loft insulation could reduce running costs and improve comfort. Crime levels are average for the area, and the house is offered freehold.
Overall, this is a practical family home with a strong outside space and parking provision, ready for someone to modernise or adapt to current needs. Its location, size and garage make it particularly appealing to families seeking space and convenience in a major conurbation setting.
4 bedroom semi-detached house for sale in Vicarage Street, Oldbury, B68 — £325,000 • 4 bed • 2 bath • 1547 ft²
6 bedroom semi-detached house for sale in Barston Road, Oldbury, West Midlands, B68 — £420,000 • 6 bed • 4 bath • 1828 ft²
4 bedroom semi-detached house for sale in Ridgacre Road, Quinton, Birmingham, West Midlands, B32 — £435,000 • 4 bed • 2 bath • 1496 ft²
4 bedroom semi-detached house for sale in Packwood Road, Tividale, Oldbury, West Midlands, B69 — £350,000 • 4 bed • 2 bath • 1551 ft²
4 bedroom semi-detached house for sale in Forest Road, Oldbury, B68 — £425,000 • 4 bed • 2 bath • 1572 ft²
4 bedroom detached house for sale in David Harman Drive, West Bromwich B71 3RH, B71 — £470,000 • 4 bed • 3 bath














































































































































































































