Large freehold plot with full planning for a substantial 5/6-bedroom family home..
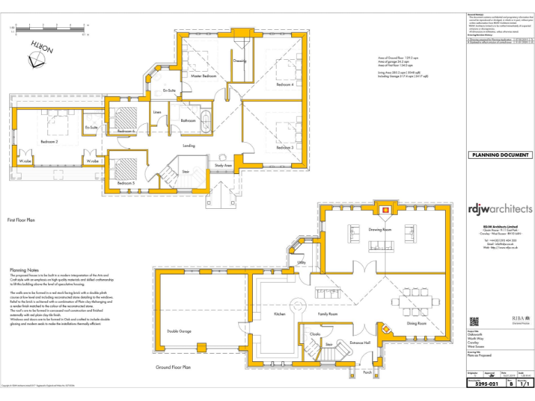
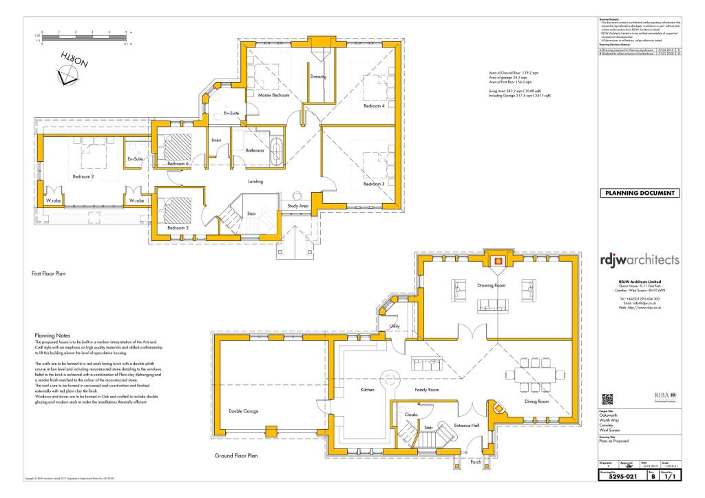
Full planning permission granted (CR/2019/0167/FUL) for ~3,500 sq ft home
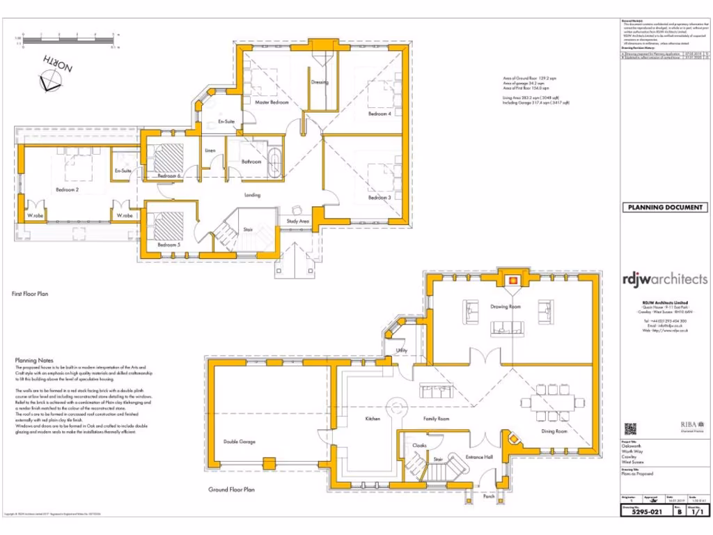
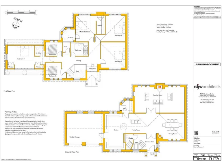
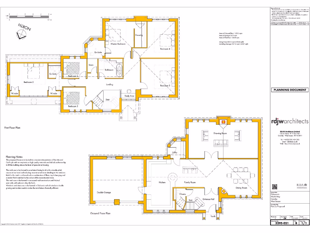
A rare plot with full planning permission for a substantial 5/6-bedroom detached family home of approximately 3,500 sq ft sits on a large, south-facing 0.35-acre plot in sought-after Worth. The scheme (planning ref CR/2019/0167/FUL) includes a double garage and generous private gardens, creating strong potential for a spacious family residence with excellent indoor–outdoor flow.
The location supports family life: good-rated local secondary schools and several nearby primary options (including an Outstanding infant academy and Good secondaries), fast broadband and excellent mobile signal. The site is freehold, has no recorded flood risk and lies in a very affluent, low-crime area, offering long-term neighbourhood stability and resale appeal.
Buyers should note this is a plot requiring full construction. Material considerations include build costs, contractor procurement, statutory consents beyond the granted permission and on-site development works. Council tax banding is not yet applicable to the new property and will be determined post-build.
This opportunity suits buyers who want a large, contemporary family home in a premier Worth setting or investors aiming to deliver a high-value new build. A clear project plan and budget for construction are essential to realise the plot’s potential.
Land for sale in Hophurst Lane, Crawley Down, RH10 — £700,000 • 1 bed • 1 bath • 3000 ft²
5 bedroom detached house for sale in Littleworth, Partridge Green, Horsham, West Sussex, RH13 — £500,000 • 5 bed • 3 bath • 2368 ft²
Plot for sale in Keymer Road, Burgess Hill, RH15 — £450,000 • 5 bed • 3 bath • 3290 ft²
5 bedroom detached house for sale in Green Lane, Worth, Crawley, RH10 — £800,000 • 5 bed • 2 bath • 2000 ft²
Plot for sale in Outwood Lane, Chipstead, CR5 — £1,250,000 • 1 bed • 1 bath • 3284 ft²
5 bedroom detached house for sale in 57 Lewes Road, Haywards Heath, RH17 — £450,000 • 5 bed • 4 bath • 3211 ft²














































