Refurbished 3-bed semi with garden, garage and good local schools.
Newly renovated throughout, move-in ready
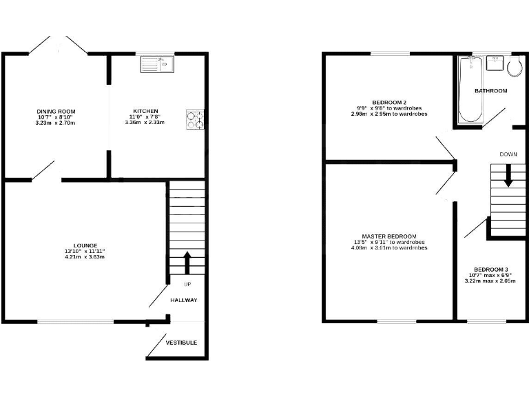
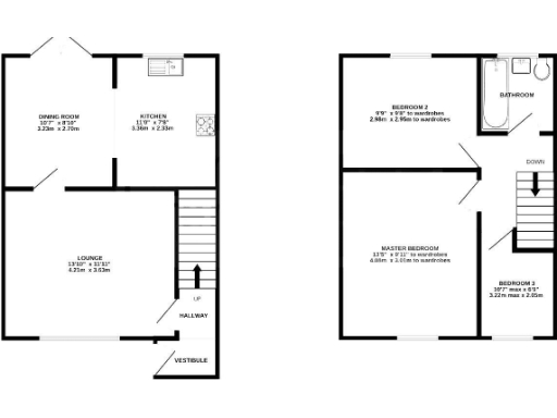
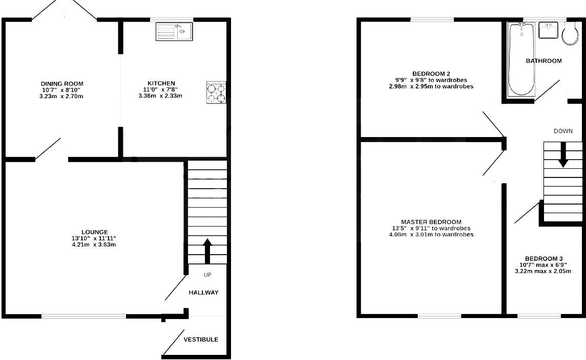
A freshly modernised three-bedroom semi-detached house in Radcliffe, offered at guide price £200,000–£210,000. The accommodation (approx. 642 sq ft) has been renovated recently, with new double glazing and contemporary finishes, making it a move-in-ready choice for first-time buyers or small families. The house benefits from a private rear garden, off-road parking and a garage — practical assets in this built-up suburban area.
The property sits in an established neighbourhood with very low recorded crime, fast broadband and excellent mobile signal. Several 'Good' rated primary and secondary schools are nearby, and local amenities and bus links are within easy reach, supporting everyday family life and commuting.
Important practical matters: the property is leasehold with a small ground rent (£15). There is one bathroom only and the overall floor area is compact, so space is best suited to couples, young families or buyers prioritising location over generous floorplan. Buyers should note the advertised buyer process includes an exclusivity fee (£2,000) and a processing fee (£200) to reserve purchase rights — these are additional costs and subject to the seller’s stated procedure.
Overall, this is a tidy, newly refurbished home offering sensible running costs (mains gas heating, recent glazing) and convenient local services. It represents a straightforward, lower-risk purchase for those seeking an affordable entry point into the Radcliffe market, provided buyers are comfortable with leasehold terms and the purchasing process outlined.
3 bedroom semi-detached house for sale in Highfield Avenue, Radcliffe, Manchester, Greater Manchester, M26 — £200,000 • 3 bed • 1 bath • 917 ft²
3 bedroom semi-detached house for sale in Stainton Road, Radcliffe, Manchester, Greater Manchester, M26 — £270,000 • 3 bed • 1 bath • 1033 ft²
3 bedroom detached house for sale in Barnfield Close, Manchester, M26 — £280,000 • 3 bed • 1 bath • 952 ft²
3 bedroom semi-detached house for sale in Meadowcroft, Radcliffe, Manchester, M26 — £260,000 • 3 bed • 1 bath • 866 ft²
3 bedroom semi-detached house for sale in Calf Hey Close, Radcliffe, Manchester, Greater Manchester, M26 — £170,000 • 3 bed • 1 bath • 757 ft²
3 bedroom semi-detached house for sale in Moss Shaw Way, Radcliffe, Manchester, M26 — £250,000 • 3 bed • 1 bath • 872 ft²










































































