Affordable first-home or investment with garage and garden close to transport.
No upper chain — ready for quick sale
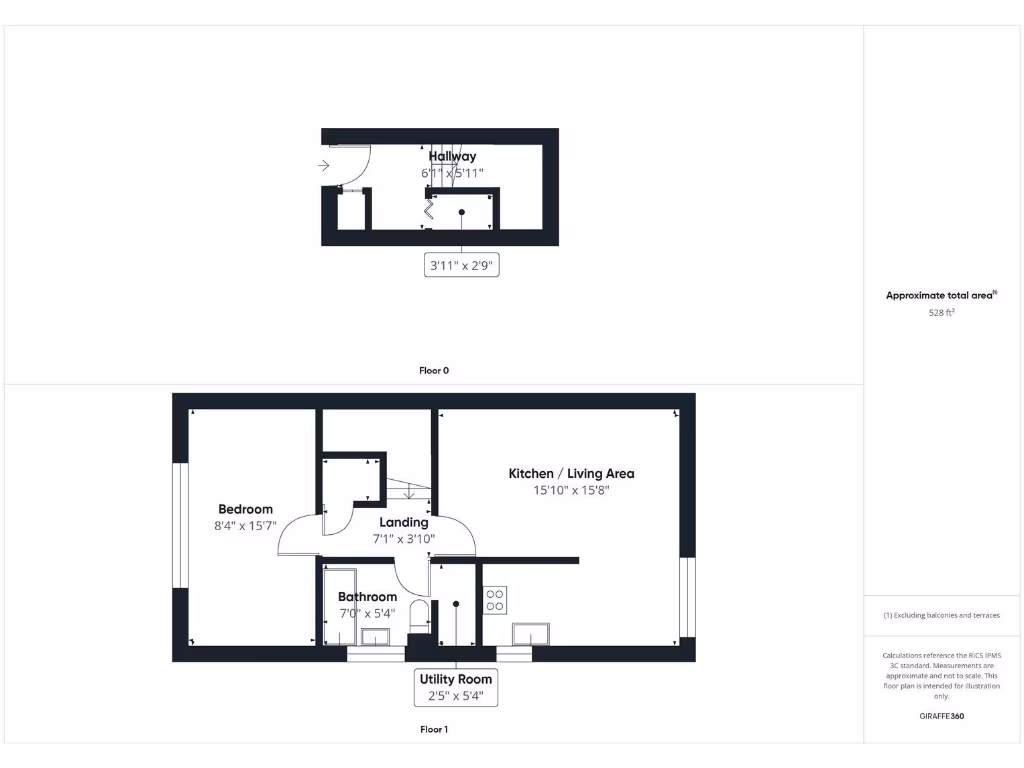
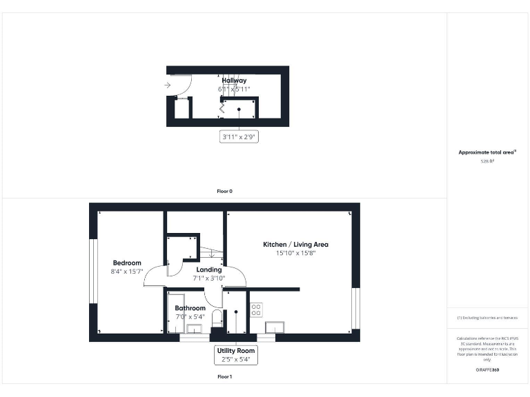
This chain-free first-floor one-bedroom maisonette on Brickett Close offers a compact, light-filled home with clear scope to add value. The layout includes a spacious living room, fitted kitchen, double bedroom with built-in wardrobes, bathroom and useful storage cupboards. Externally there is a private garden and an attached garage — helpful for parking or storage.
The property requires modernisation throughout, so it will suit buyers happy to refurbish: cosmetic and functional updates are needed, but the room proportions and natural light make a stylish refit achievable. The lease has approximately 85 years remaining; the tenure is leasehold. Council Tax is Band C, which is relatively affordable.
Location is a genuine selling point: situated for North Ruislip and Ruislip High Street amenities, local bus routes and Metropolitan/Piccadilly line services. Popular local schools (including Whiteheath Infant & Junior) and recreational spots such as Ruislip Woods and the Lido are nearby. The A40 provides fast road links into central London.
Buyers should note some material negatives: the flat needs renovation, local crime levels are reported above average, and the wider area classification is recorded as 'Hampered aspiration' despite other indicators of affluence. Investors and first-time buyers who plan updates will find this an accessible priced opportunity with potential to improve value.
2 bedroom end of terrace house for sale in Brickett Close, Ruislip, HA4 — £485,000 • 2 bed • 1 bath • 788 ft²
1 bedroom maisonette for sale in Abercorn Grove, Ruislip, HA4 — £225,000 • 1 bed • 1 bath • 424 ft²
1 bedroom maisonette for sale in Lakeside Close, Ruislip, HA4 — £310,000 • 1 bed • 1 bath • 460 ft²
2 bedroom maisonette for sale in Whitby Road, Ruislip, Middlesex, HA4 — £400,000 • 2 bed • 1 bath • 798 ft²
1 bedroom maisonette for sale in St. Peters Close, Ruislip, HA4 — £350,000 • 1 bed • 1 bath • 554 ft²
2 bedroom maisonette for sale in The Greenway, Ickenham, Uxbridge, UB10 — £325,000 • 2 bed • 1 bath • 658 ft²














































