Large extended four-bed family house with modern open-plan living and west-facing garden.
Detached family house over 2,000 sq ft with large rear garden
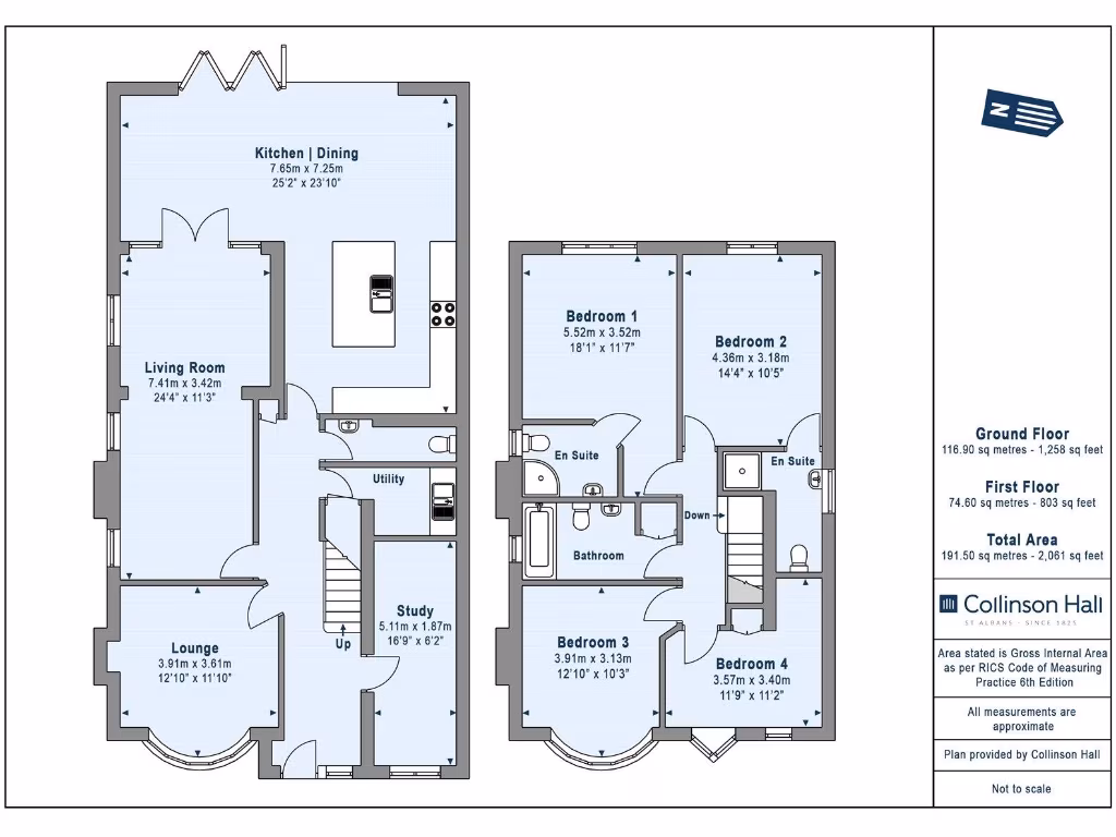
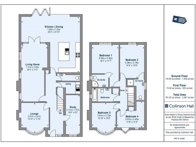
A substantial, detached family home offering over 2,000 sq ft of flexible living space in the popular Chiswell Green area of St Albans. The house combines generous reception rooms, a dedicated study and a large open-plan kitchen/dining/family room with bi-fold doors that open onto a west-facing, landscaped rear garden with two decked terraces — good for evening sun and entertaining.
Four double bedrooms are arranged across the first floor, with two en suites and a separate family bathroom, making the layout well suited to family life or multi-generational living. The property benefits from practical additions including a utility room, cloakroom and plentiful off-street parking for multiple vehicles on a large front drive; tenure is freehold and the EPC is C (69).
Notable positives include fast broadband, a large plot with mature planting, and recent sympathetic extension work (property shows both traditional 1930s exterior features and later extension). Important drawbacks are clear and factual: the immediate area records above-average crime levels and council tax is in an expensive band (Band F). Mobile signal is average and while the home is well-proportioned it will suit buyers prepared to personalize and maintain a larger property.
This house will appeal to families seeking space near strong local schools and commuter links, and to buyers who value indoor-outdoor living. It is presented as a roomy, adaptable home with definite family appeal but priced and marketed with the practical considerations above in mind.
3 bedroom semi-detached house for sale in Sunnydell, St. Albans, Hertfordshire, AL2 — £700,000 • 3 bed • 2 bath • 1400 ft²
4 bedroom detached house for sale in Watford Road, Chiswell Green, St Albans, Hertfordshire, AL2 — £850,000 • 4 bed • 3 bath • 2200 ft²
4 bedroom detached house for sale in Tippendell Lane, Chiswell Green, St Albans, AL2 — £895,000 • 4 bed • 3 bath • 1697 ft²
5 bedroom detached house for sale in Watford Road, St. Albans, Hertfordshire, AL2 — £1,150,000 • 5 bed • 3 bath • 2047 ft²
3 bedroom end of terrace house for sale in South Close, St. Albans, AL2 — £800,000 • 3 bed • 1 bath • 1366 ft²
3 bedroom detached house for sale in Tippendell Lane, St. Albans, Hertfordshire, AL2 — £700,000 • 3 bed • 1 bath • 1294 ft²






























































































































































