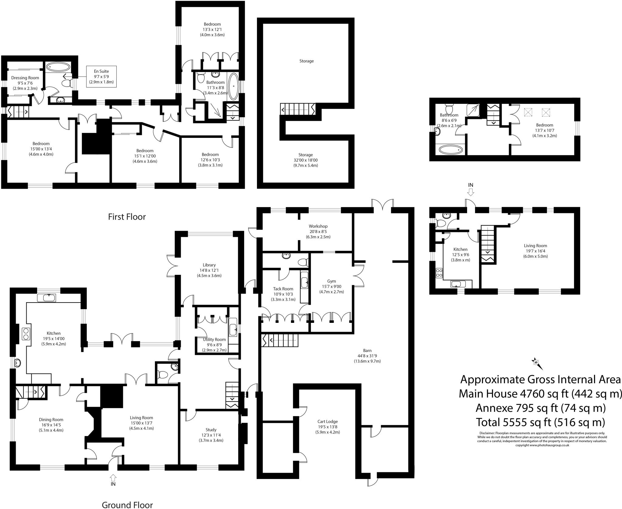
**Standout Features:**
- Grade II Listed 17th Century farmhouse
- Approximately 1.1 acres of beautifully landscaped grounds
- Impressive 5,555 sq ft of versatile accommodation
- Detached annexe ideal for guests or multi-generational living
- Modern rustic living room with double-height ceiling and inglenook fireplace
- High-quality bespoke kitchen with Aga and garden views
- Spacious outbuildings, including a cart lodge for two vehicles and barn for potential use
**Concerns:**
- Listed status may complicate renovations or alterations
- Potential right of access through a neighboring drive
- Council tax band G indicates higher local taxes
Located just 3 miles from Chelmsford City Centre, Woolpits Farm is a stunning 17th Century Grade II Listed farmhouse, perfectly blending historic charm with modern comfort. Nestled within 1.1 acres of tranquil, landscaped gardens, this extensive property boasts an impressive 5,555 sq ft of accommodation, making it ideal for families or those with a love for entertaining. The main house features five spacious bedrooms, four bathrooms, and exquisite period details such as exposed timber beams and a large inglenook fireplace that create an inviting atmosphere.
The bespoke farmhouse kitchen, equipped with an Aga and generous workspace, opens to an elegant garden room that captures breathtaking views of the lush grounds. For added versatility, a detached annexe offers guest accommodation, while an adjacent barn presents exciting potential for personalisation based on your needs. Perfectly positioned amidst peaceful countryside vistas yet close to city amenities and highly regarded schools, this property is a rare find. With its combination of historical significance and modern comforts, Woolpits Farm is not just a home, but a lifestyle waiting to be embraced—don’t miss the chance to make it your own!
3 bedroom house for sale in Chalk Street, Rettendon Common, Chelmsford, Essex, CM3 — £925,000 • 3 bed • 1 bath • 1310 ft²
4 bedroom detached house for sale in Sexton's Lane, Great Braxted, Witham, Essex, CM8 — £1,600,000 • 4 bed • 3 bath • 3329 ft²
4 bedroom detached house for sale in Hay Green Lane, Blackmore, CM4 — £3,000,000 • 4 bed • 2 bath • 3262 ft²
5 bedroom farm house for sale in Waltons Hall Road, Linford, SS17 — £925,000 • 5 bed • 1 bath • 2066 ft²
4 bedroom detached house for sale in Birch Road, Copford, Colchester, Essex, CO6 — £1,250,000 • 4 bed • 2 bath • 2512 ft²
5 bedroom farm house for sale in Raydon Road, Great Wenham, Colchester, Suffolk, CO7 — £1,500,000 • 5 bed • 4 bath • 2906 ft²


































































































































































































































