**Standout Features:**
- Well-presented two-bedroom semi-detached house
- Quiet residential cul-de-sac location
- Gas central heating with a modern combi boiler & double glazing
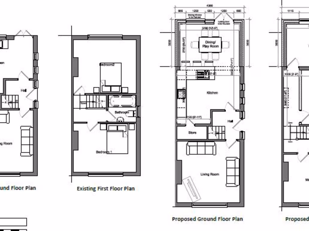
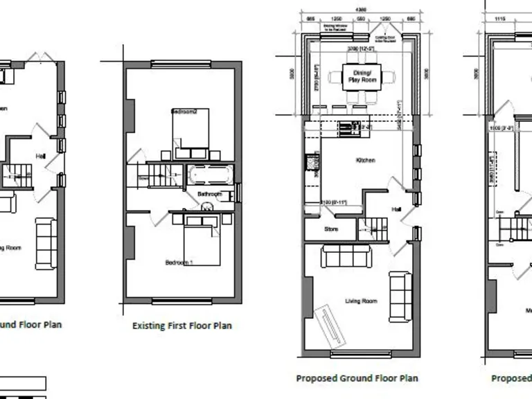
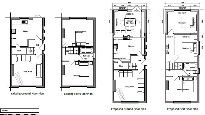
- Expired planning permission for a two-storey rear extension (kitchen-diner & third bedroom)
- Off-street parking and generous enclosed rear garden
- Close to schools, recreation grounds, and transport links
- Ideal for first-time buyers or young families
Nestled in a peaceful cul-de-sac, this charming two-bedroom semi-detached house is perfect for first-time buyers or young families seeking comfort and convenience. The home boasts a warm living room featuring a fireplace, a practical dining kitchen with French doors leading to a generous enclosed garden, and two well-sized bedrooms upstairs. It benefits from gas central heating via a combi boiler and double glazing throughout for added efficiency.
The property is ideally situated near excellent schooling options for all age groups and is just a short walk from Hickings Lane Recreation Ground, which is being upgraded with new community facilities. While there's expired planning permission for a two-storey rear extension, the potential to expand is enticing for buyers looking to personalize their investment.
With off-street parking, easy access to transport links, and a relaxing garden space ready for outdoor enjoyment, this property presents a unique opportunity to create your dream home. Don't miss out on this rare find in a likable neighborhood—schedule your internal viewing today!











































































