**Standout Features:**
- Chain-free luxury ground floor flat in a character building
- Two spacious double bedrooms with high ceilings
- Allocated garage and parking space 
- Beautifully landscaped communal gardens and private wraparound patio
- Conveniently located within walking distance of local amenities and Merstham station
**Potential Concerns:**
- Above-average service charge of £5,204 
- Minor maintenance checks may be needed due to age of building (1900-1929)
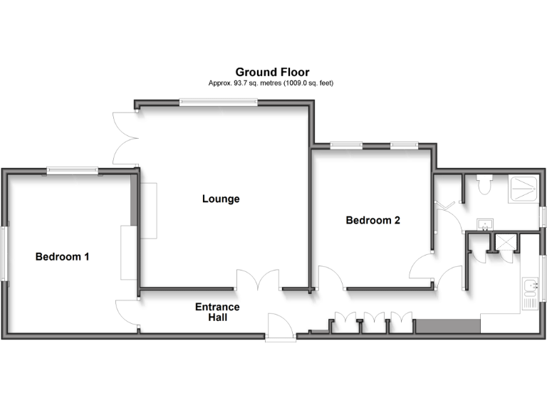
Discover a rare opportunity to own a beautifully presented ground floor flat in the heart of Merstham village, ideally suited for professionals, downsizers, or anyone seeking a blend of comfort and charm. This spacious 1,174 sqft apartment boasts two generous double bedrooms, a bright living room, and a modern kitchen, all retaining splendid Victorian features including intricate fireplaces. High ceilings and large sash windows ensure an airy atmosphere, while the wraparound patio and well-manicured communal gardens provide a serene outdoor retreat. With the added convenience of a garage en block and excellent transport links to London, this property offers both lifestyle and investment potential. Don't miss out—properties like this in such a prime location are hard to come by!
 2 bedroom flat for sale in Nutfield Road, Merstham, RH1 3EL, RH1 — £299,950 • 2 bed • 1 bath • 507 ft²
 2 bedroom flat for sale in Nutfield Road, Merstham, RH1 3EL, RH1 — £299,950 • 2 bed • 1 bath • 507 ft² 2 bedroom ground floor flat for sale in School Hill, Merstham, Dorking, Surrey, RH1 — £350,000 • 2 bed • 1 bath • 808 ft²
 2 bedroom ground floor flat for sale in School Hill, Merstham, Dorking, Surrey, RH1 — £350,000 • 2 bed • 1 bath • 808 ft² 2 bedroom apartment for sale in London Road North, Merstham, Redhill, Surrey, RH1 — £315,000 • 2 bed • 1 bath • 675 ft²
 2 bedroom apartment for sale in London Road North, Merstham, Redhill, Surrey, RH1 — £315,000 • 2 bed • 1 bath • 675 ft² 2 bedroom flat for sale in Scotia Court, Station Road North, Merstham, RH1 3GH, RH1 — £328,000 • 2 bed • 1 bath • 704 ft²
 2 bedroom flat for sale in Scotia Court, Station Road North, Merstham, RH1 3GH, RH1 — £328,000 • 2 bed • 1 bath • 704 ft² 2 bedroom ground floor flat for sale in School Hill, Merstham, Dorking, Surrey, RH1 — £140,000 • 2 bed • 1 bath • 808 ft²
 2 bedroom ground floor flat for sale in School Hill, Merstham, Dorking, Surrey, RH1 — £140,000 • 2 bed • 1 bath • 808 ft² 2 bedroom apartment for sale in Station Road North, Merstham, Redhill, RH1 — £315,000 • 2 bed • 2 bath • 679 ft²
 2 bedroom apartment for sale in Station Road North, Merstham, Redhill, RH1 — £315,000 • 2 bed • 2 bath • 679 ft²














































































