Roomy family home close to Horley station and local schools.
Chain free 1930s detached family home
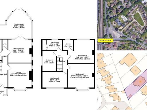
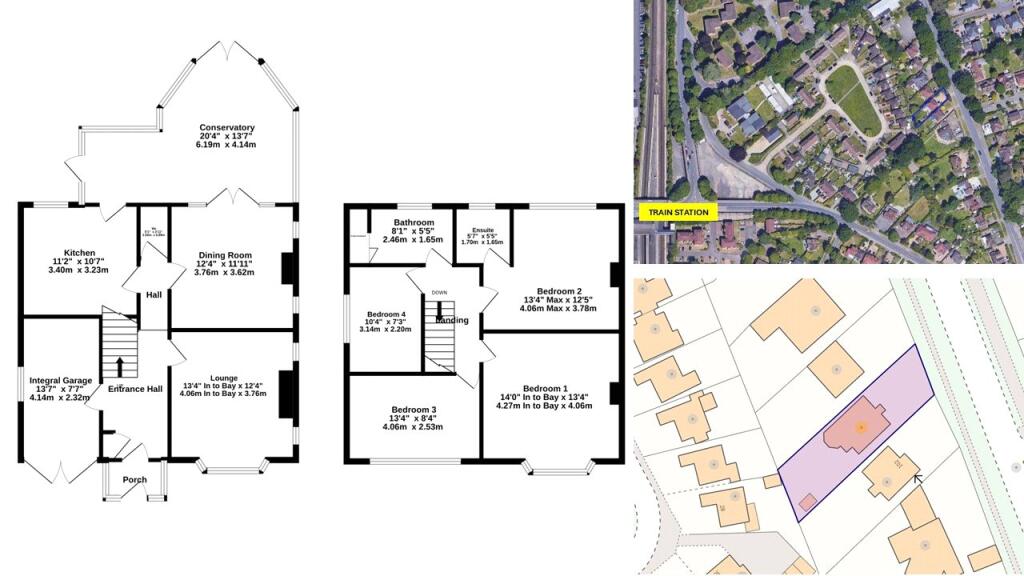
This 1930s detached family home combines authentic period character with generous, flexible living space across approximately 1,571 sq ft. The ground floor offers a bay-fronted lounge with original fireplace, a separate dining room, a sizeable kitchen/breakfast room and a large P-shaped conservatory overlooking a mature, well-proportioned rear garden. Off-street parking and an integral garage add everyday convenience and scope for conversion (subject to permissions).
Upstairs are four double bedrooms including a principal room with bay window and a second bedroom with en-suite; a modern family bathroom serves the remaining bedrooms. The property is chain free and sits just 0.3 miles from Horley train station, making it particularly convenient for commuters and families using local schools and amenities.
Practical points to note: the house dates from the 1930s so some areas may benefit from updating to suit modern tastes; double glazing is present but the installation date is unknown. Council tax is above average for the area. Overall this is a spacious, characterful home with scope for refurbishment or extension to add value and adapt to contemporary family living.
4 bedroom detached house for sale in Balcombe Road, Horley, Surrey, RH6 — £740,000 • 4 bed • 2 bath • 1299 ft²
4 bedroom detached house for sale in Sangers Drive, Horley, Surrey, RH6 — £500,000 • 4 bed • 1 bath • 1098 ft²
4 bedroom detached house for sale in Willow Brean, Horley, Surrey, RH6 — £600,000 • 4 bed • 1 bath • 1323 ft²
3 bedroom detached house for sale in Balcombe Gardens, Horley, Surrey, RH6 — £700,000 • 3 bed • 1 bath • 1097 ft²
4 bedroom detached house for sale in Russells Crescent, Horley, RH6 — £1,000,000 • 4 bed • 4 bath • 2500 ft²
4 bedroom detached house for sale in Brighton Road, Horley, Surrey, RH6 — £700,000 • 4 bed • 3 bath • 1690 ft²


































































































