IP2 8LU - 1 bedroom park home for sale in Bourne Park Residential Par…

View on Property Piper

1 bedroom park home for sale in Bourne Park Residential Park, Ipswich, IP2

Summary - 24A, BOURNE PARK RESIDENTIAL PARK, IPSWICH IP2 8LU

1 bed 1 bath Park Home

Low-maintenance one-bedroom park home for over-55s with parking.
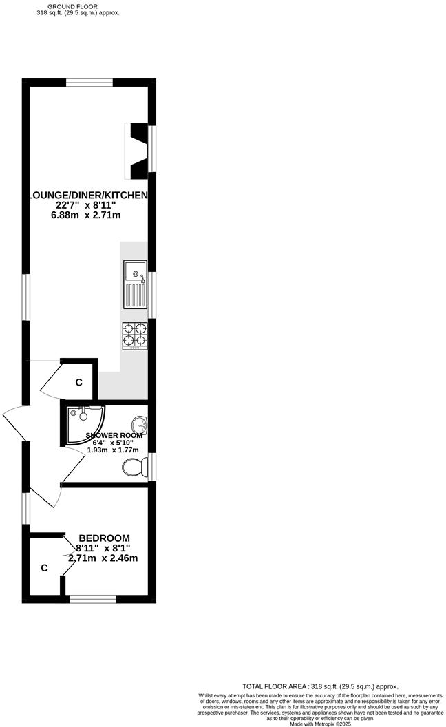
Detached single-storey park home, 318 sq ft
A compact, single-storey detached park home in Bourne Park Residential Park, designed for over-55s seeking low-maintenance living. The open-plan lounge and modern kitchen maximise the property's 318 sq ft, while a contemporary wet room and one double bedroom provide comfortable, accessible accommodation for a single occupant or couple.

Outside, a small paved garden and allocated off-street parking keep upkeep minimal. The park offers a close-knit, communal retirement setting close to Ipswich amenities and transport links. Mobile signal is excellent for phones.

Important practical points: the home is leasehold with a high ground rent (£2,400 p.a.) and has a no-pets policy. Broadband speeds in the area are slow and the property is compact, so it suits buyers prioritising convenience and community over space. Council tax is very cheap, and flood risk is low.

Property Details

Brochure Descriptions

Image Descriptions

Floorplan Description

Rooms

Textual Property Features

Target Audience

AI Tags

Detected Visual Features

Nearby Schools

Nearest Bars And Restaurants

,,,,}

Nearest General Shops

,,}

Nearest Grocery shops

,,}

Nearest Supermarkets

,,}

Nearest Religious buildings

,,}

Nearest Medical buildings

,,,}

Nearest Leisure Facilities

,,,,}

Nearest Tourist attractions

,,}

Nearest Train stations

,,,,}

Nearest Bus stations and stops

,,,,}

Nearest Hotels

,,}

Tags

Local Market Stats

Similar Properties

Meta

High Res Images

Compatible Images

Low res Images

Thumbnails

Raw Images

High Res Floorplan Images

Compatible Floorplan Images

Low res Floorplan Images

FloorplanImages Thumbnail

Raw Floorplan Images