Income-producing property with granted planning and parking, steps from the station.
- Mixed commercial/residential freehold opposite Portslade Station
- HMO upstairs lets to four sharers producing £25,000pa
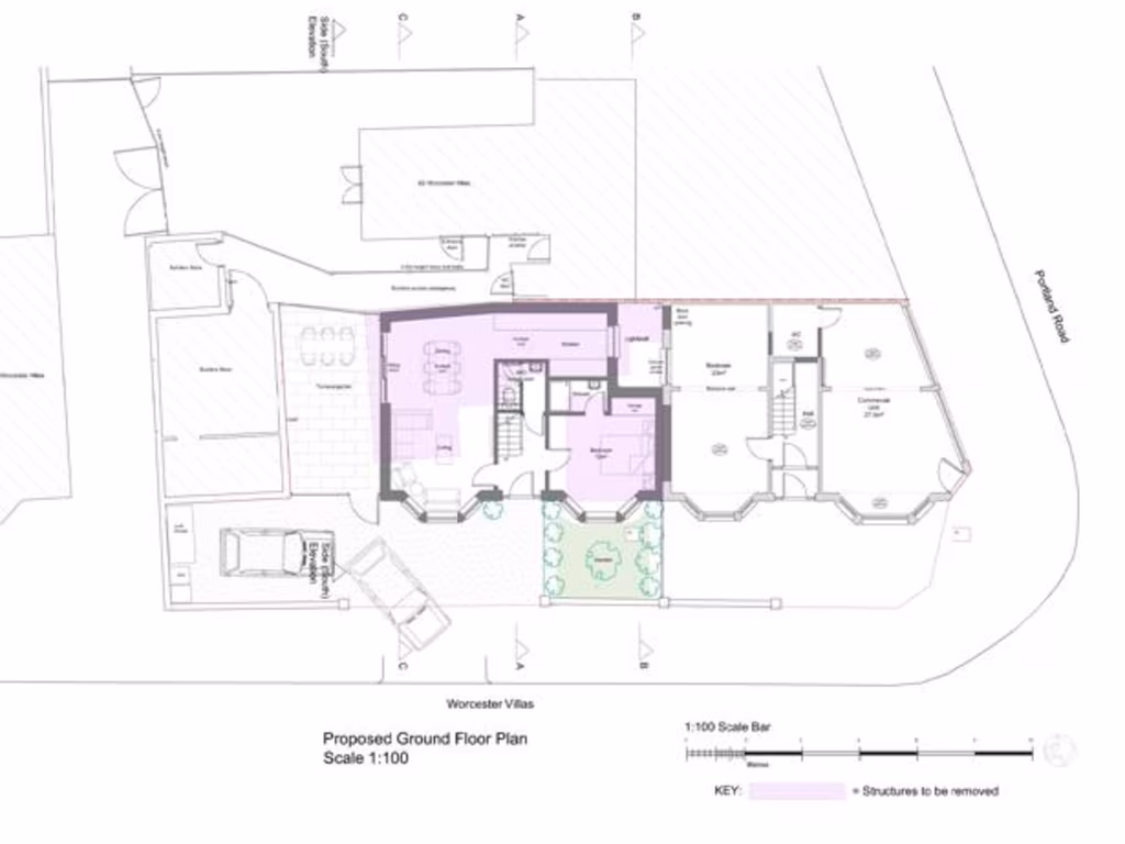
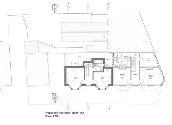
- Planning permission granted (BH2023/03157) for 3-bed house
- Adjacent land with off-road parking for multiple vehicles
- Commercial unit can be sold trading or with vacant possession
- Period features: high ceilings, bay windows; needs modernisation
- Cavity walls assumed uninsulated; likely energy upgrade required
- Single shower room for four bedrooms; refurbishment costs expected
A rare mixed-use freehold in a prime, commuter-friendly spot opposite Portslade Station. The ground-floor commercial unit currently operates as a café and can be sold with vacant possession or as a going concern, offering immediate trading potential or alternative retail use.
Upstairs is a four-bedroom HMO producing £25,000 per annum (including bills, excluding electric) with separate Worcester Villas access. Planning permission (BH2023/03157) has been granted for a standalone three-bedroom house with two bathrooms and off-road parking on the adjacent land, creating clear development upside for owner-occupiers or investors.
The building retains period character—high ceilings and bay windows—but will benefit from targeted updating: the commercial area and maisonette need refresh for modern standards, and cavity walls are assumed uninsulated so energy improvements are likely. Council tax is very low and there is decent private outdoor space and multiple off-street parking spaces.
This is best for a buyer seeking an income-producing asset with redevelopment potential in a very affluent area. Note practical issues: single shared bathroom for the HMO, likely refurbishment costs, and the commercial success depends on ongoing footfall and trading continuity.
Residential development for sale in Portland Rd/Worcester Villas, Hove, BN3 — £700,000 • 4 bed • 1 bath • 1783 ft²
Commercial property for sale in 33-33a Montefiore Road, Hove, BN3 1RD, BN3 — £750,000 • 1 bed • 1 bath • 1988 ft²
Commercial property for sale in 28 & 28A Boundary Road, Hove BN3 4EF, BN3 — £450,000 • 1 bed • 1 bath • 1425 ft²
7 bedroom end of terrace house for sale in Lewes Road, Brighton, BN2 — £750,000 • 7 bed • 7 bath • 2149 ft²
Commercial property for sale in 28 & 28A Boundary Road, Hove BN3 4EF, BN3 — £450,000 • 1 bed • 1 bath • 1425 ft²






























































































