Central Pimlico location with bright open-plan living near Victoria and Pimlico stations.
Handsome white‑stucco Georgian exterior and high ceilings
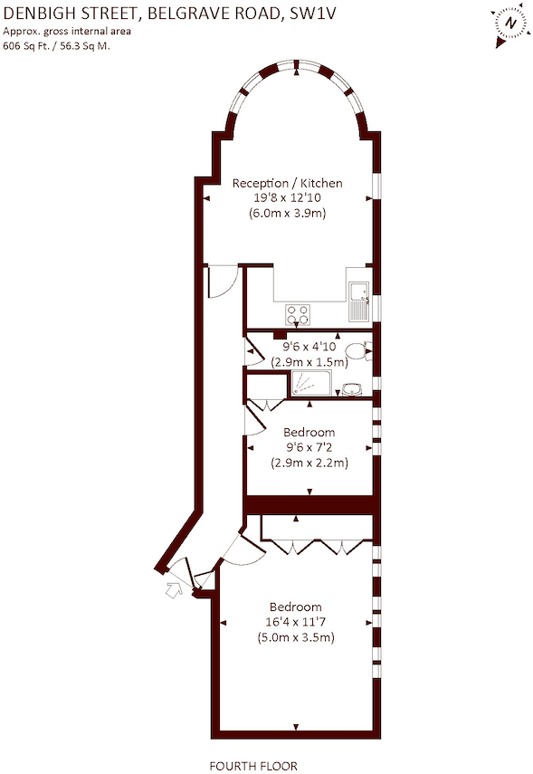
A bright two-bedroom flat on the fourth floor of a handsome white‑stucco Pimlico townhouse. The apartment benefits from high ceiling proportions typical of the period, large sash windows and an open-plan reception with a newly fitted kitchen and panoramic roof views — good for natural light and an airy feel.
The large master bedroom offers generous built-in storage and the layout suits a single professional, couple or first-time buyer seeking central location and efficient use of space. Victoria and Pimlico stations are within walking distance, with plentiful local shops, cafés and amenities on the doorstep.
Important practical points: the property is small at about 606 sq ft and is a fourth-floor walk-up, so not suitable for those requiring lift access. It is leasehold, has an EPC rating of D and timber-frame walls assumed without insulation, which may affect heating costs. Council tax is above average.
Offered in good decorative order, the flat presents straightforward short-term living and further potential to personalise. Buyers should allow for typical period-property maintenance and consider energy-improvement options given the construction and EPC rating.
2 bedroom apartment for sale in St Georges Drive, London, SW1V — £675,000 • 2 bed • 1 bath • 567 ft²
1 bedroom flat for sale in Denbigh Street, Pimlico, SW1V — £475,000 • 1 bed • 1 bath • 455 ft²
2 bedroom flat for sale in St Georges Square, Pimlico, SW1V — £650,000 • 2 bed • 2 bath • 808 ft²
2 bedroom apartment for sale in Denbigh Street, Pimlico, London, SW1V — £750,000 • 2 bed • 1 bath • 569 ft²
2 bedroom flat for sale in Gloucester Street, Pimlico, London, SW1V — £650,000 • 2 bed • 1 bath • 540 ft²
2 bedroom apartment for sale in Denbigh Street, London, SW1V — £575,000 • 2 bed • 1 bath • 606 ft²






























