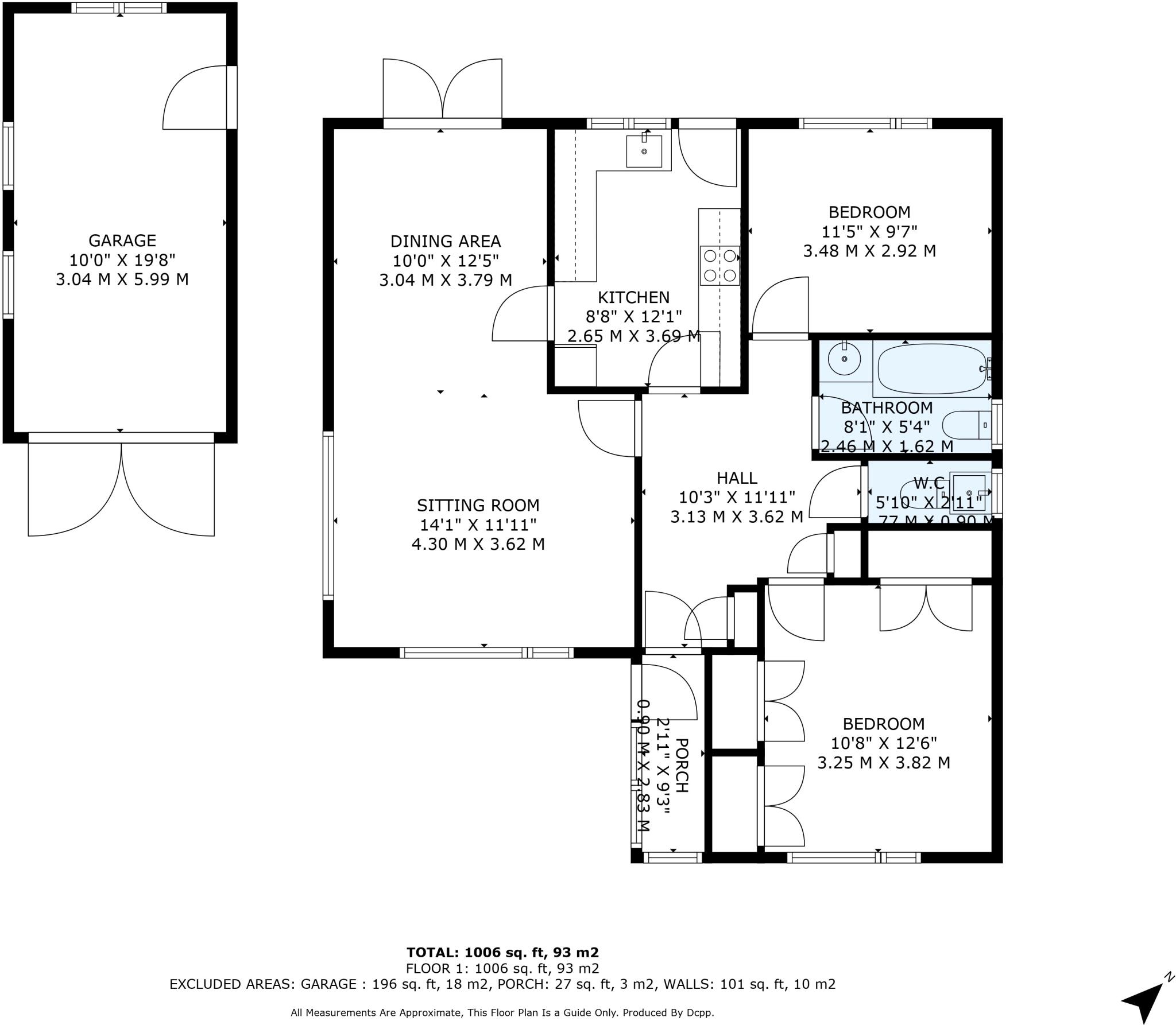
Single-storey, chain-free bungalow on a large plot with field views and garage.
Detached two-bedroom bungalow on a large plot with field views
Single-storey layout — practical for downsizers and mobility needs
Modern fitted kitchen; L-shaped sitting/dining room with patio doors
Garage with power plus off‑road parking and personal side door
Chain-free sale and gas central heating with recent double glazing
Slow local broadband speeds — may affect home working
Built mid‑20th century; scope for further modernisation or reconfiguration
Neighbourhood contains mixed social housing; area classification noted
A well-presented, chain-free two-bedroom detached bungalow on a large plot at the edge of Stowmarket. The single-storey layout includes an L-shaped sitting/dining room, modern fitted kitchen, bathroom, separate cloakroom and practical entrance porch. Large rear garden enjoys open views over adjoining fields — a calm outlook that suits quieter lifestyles.
The property has gas central heating, double glazing (installed since 2002), a garage with power and off-road parking. Interiors are generally tidy with a contemporary kitchen and ready-to-use living spaces, making this attractive for downsizers or buyers seeking a low-maintenance home without immediate major works.
Notable practical points: broadband speeds in the area are slow and the wider neighbourhood includes mixed social housing, which may be relevant to some buyers. The bungalow dates from the mid-20th century (1930s–1940s) so there is scope for updating and reconfiguration if larger accommodation or modernisation is required. Single bathroom and limited room count reflect the compact, single-storey layout.
2 bedroom detached bungalow for sale in Underhill, Stowmarket, IP14 — £280,000 • 2 bed • 1 bath • 948 ft²
2 bedroom bungalow for sale in Lockington Crescent, Stowmarket, Suffolk, IP14 — £270,000 • 2 bed • 1 bath • 725 ft²
3 bedroom detached bungalow for sale in Campion Crescent, Stowmarket, Suffolk, IP14 — £347,500 • 3 bed • 1 bath • 809 ft²
2 bedroom detached bungalow for sale in Millers Close, Stowmarket, IP14 — £240,000 • 2 bed • 1 bath • 600 ft²
3 bedroom detached bungalow for sale in Beaumont Way, Stowmarket, IP14 — £357,000 • 3 bed • 1 bath • 819 ft²
2 bedroom bungalow for sale in Purcell Road, Stowmarket, IP14 — £250,000 • 2 bed • 1 bath • 652 ft²














































































