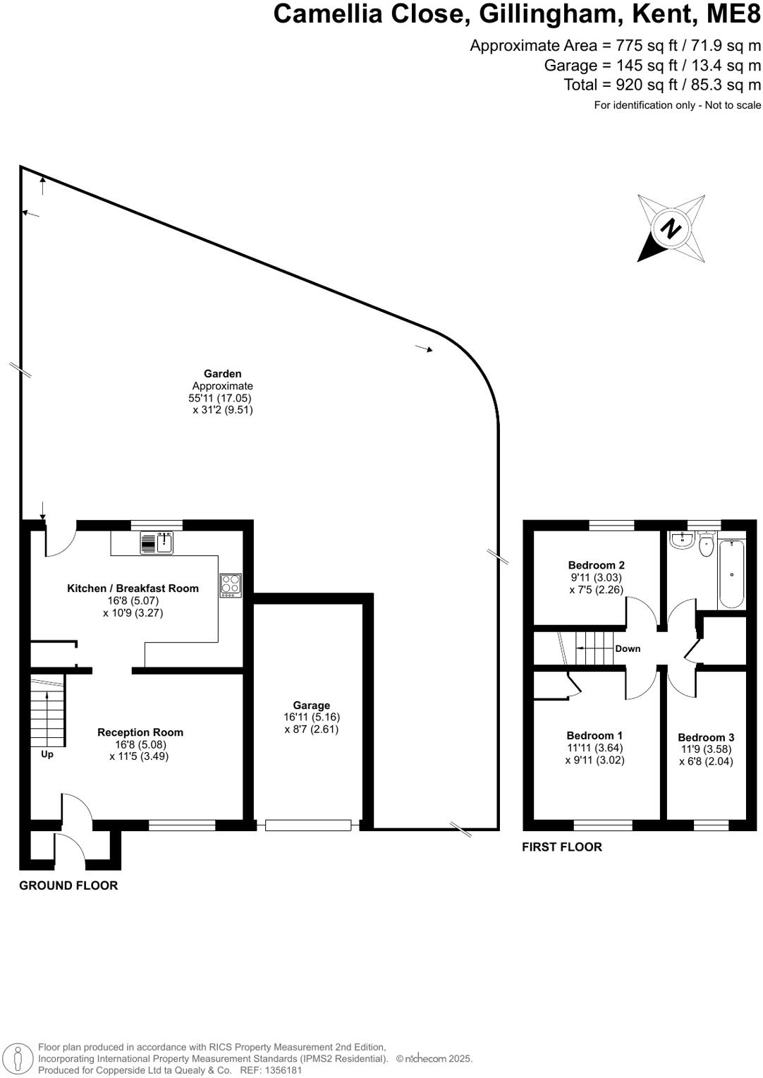
Chain-free three-bedroom house with a very large garden and garage conversion potential..
Chain free three-bedroom semi-detached home on a quiet cul-de-sac
Very large rear garden — excellent outdoor space for families
Driveway and garage providing off-road parking and conversion potential
Modest internal size: approximately 775 sqft for a three-bedroom house
Single bathroom only — may be limiting for larger families
Double glazing and gas central heating already installed
Close to local shops, bus routes and well-rated primary/secondary schools
Fast broadband; average mobile signal and moderate local crime levels
This three-bedroom semi-detached house on Camellia Close is a practical family home in a quiet cul-de-sac, offered chain free and set on a very large plot. The property sits close to local shops, primary and secondary schools (several rated Good) and has excellent motorway links — convenient for commuters and school runs. At 775 sqft, the accommodation is modest but well-laid-out across two floors, with double glazing and gas central heating already in place.
Outside, the long rear garden and driveway with a garage provide generous outdoor space and off-road parking; the garage also offers straightforward potential for conversion or side/rear extension subject to planning. Services are reliable — mains gas boiler heating, fast broadband, and average mobile signal — while council tax and local crime levels are described as moderate/average.
Practical buyers should note the house’s overall size is small for a three-bedroom family home and there is a single bathroom. Constructed in the late 1960s–1970s, the property will suit those seeking a tidy, ready-to-live-in house with scope to improve or extend over time rather than a large, move-in-luxury residence. For families wanting space outdoors, parking and excellent local schools, this presents a straightforward, chain-free opportunity.
3 bedroom semi-detached house for sale in Moor Park Close, Rainham, Gillingham, ME8 8QS, ME8 — £375,000 • 3 bed • 1 bath • 955 ft²
3 bedroom link detached house for sale in Gatcombe Close, Chatham, ME5 — £370,000 • 3 bed • 1 bath • 593 ft²
3 bedroom semi-detached house for sale in Grasmere Grove, Rochester, ME2 — £375,000 • 3 bed • 1 bath • 969 ft²
3 bedroom terraced house for sale in Pembury Way, Rainham, Gillingham, ME8 — £325,000 • 3 bed • 1 bath • 958 ft²
3 bedroom terraced house for sale in Urquhart Close, ME5 — £300,000 • 3 bed • 2 bath • 556 ft²
3 bedroom semi-detached house for sale in Stirling Close, Gillingham, ME8 — £400,000 • 3 bed • 2 bath • 1043 ft²






















































































