Move-in ready three-bed end-terrace with garage, parking and easy commuter links.
Three double bedrooms with one family bathroom
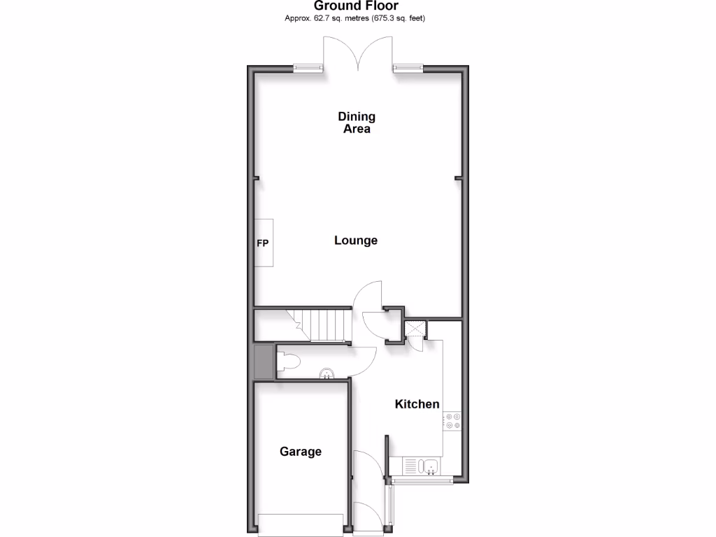
A mid-1950s three-bedroom end-terrace offering straightforward living in a quiet cul-de-sac, under a mile from Rainham station. The house has an open-plan living/dining layout, a modern-fitted kitchen and an integral garage with off-road parking — many buyers convert the garage for extra living space. The rear garden is low-maintenance, making this an easy-to-manage home for a first-time buyer or a buy-to-let investor.
Practical positives include double glazing (installation date unknown), mains gas central heating with boiler and radiators, and a ground-floor cloakroom which helps family flow. Local schools are well-rated and green spaces such as Ingrebourne Hill and Hornchurch Country Park are close by.
Notable considerations: the property dates from the 1950s–60s so some systems and finishes might be older; double-glazing install date is unspecified. There is a single family bathroom serving three double bedrooms. The integral garage is a valuable asset but converting it will require planning/consent checks and impacts parking. Council tax is moderate and the plot is small, so outdoor space is limited compared with larger gardens.
Overall this is a practical, well-located home for someone wanting a move-in-ready starter property with straightforward improvement potential, or an investor seeking a rentable three-bedroom in an affluent, low-crime area.
3 bedroom end of terrace house for sale in Gillam Way, Rainham, RM13 — £480,000 • 3 bed • 1 bath • 880 ft²
3 bedroom semi-detached house for sale in Wells Gardens, Rainham, RM13 — £475,000 • 3 bed • 1 bath • 929 ft²
3 bedroom end of terrace house for sale in Frederick Road, Rainham, RM13 — £475,000 • 3 bed • 2 bath • 1048 ft²
3 bedroom terraced house for sale in Lynbrook Close, Rainham, RM13 — £425,000 • 3 bed • 1 bath • 826 ft²
3 bedroom terraced house for sale in Ongar Way, Rainham, RM13 — £400,000 • 3 bed • 1 bath
3 bedroom terraced house for sale in Ongar Way, South Hornchurch, Hornchurch, Essex, RM13 — £425,000 • 3 bed • 1 bath • 642 ft²






































































